$400,000
14 Miller Street, Springton, SA 5235
Where Dreams Are Made & Glasses Raised
PRIVATE VIEWINGS WELCOMED BY APPOINTMENT
NOTE: The homestead/vineyard can only be purchased if whole package is secured including restaurant and winery. The vendor will accept EOI on the restaurant and winery solely without homestead/vineyard. For more photos and full site plans go to https://raywhitenorthadelaide.com.au/properties/for-sale
A dream can become a reality if visualised, written as a goal and actioned. How often have you sampled the beautiful wines from the world famous Barossa Valley region and dreamed of your own wine label? Better still, complete the vision with your own restaurant/cellar door, winery and vineyard. Well no need to write your goal down, just continue to read.
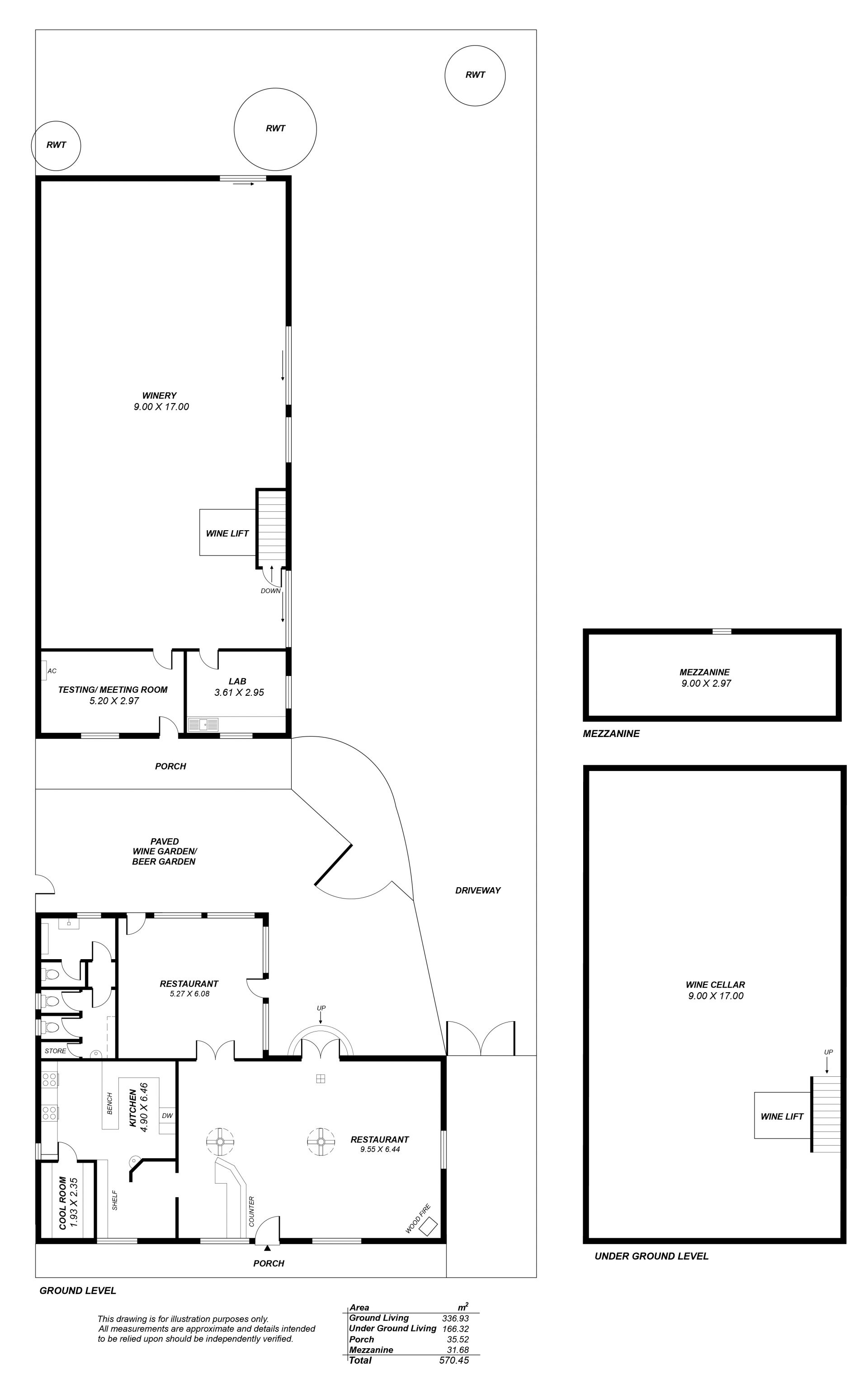
The old Springton Blacksmith's shop is a piece of history, complete with fully fitted commercial kitchen, cool room, magnificent split-level restaurant and divine wine and beer garden. Adjacent to this spectacular venue is the purpose built winery, with tasting room, office/laboratory, production area, mezzanine storage area and that sensational cellar.
Then if this opportunity appeals and you want to complete that goal, there is the restored 3 bedroom homestead circa 1860 sitting on approx. 31 hectares, including vineyard with a divine mix of shiraz and cabernet sauvignon vines. The 5 mega litre dam and licensed bore of 17,287 kilolitres approx. (inclusive of rollover), complete this dream with room for expansion.
Further information on Restaurant/Winery
- Allotment approx. 1083sqm
- Restaurant is air conditioned
- Large wood heater in the corner of main restaurant
- Crockery, cutlery, glassware, tables and chairs included
- External to winery there is a waste water storage tank emptied by local contractors
- Winery plant/equipment and stock NOT included, but can be negotiated separately
- Situated centrally in town and adjacent to the only hotel in Springton
- Ample on street and off street parking
Further information on Vineyard & Homestead
- 31Ha approx. plus 1Ha approx. water reserve
- Significant Redgums scattered through the property
- External fencing and some internal fencing replaced 3 years ago
- Licenced bore that pumps approx. 9000L/hour. Licence inclusive of roll over approx. 17,287kL
- Bore supplies water for house garden and vineyard
- 5 megalitre dam not lined
- 6Ha approx. of grape vines: Section 1 near homestead is 1997 shiraz vines, Section 2 adjacent to Cookes road 1998 combination of shiraz and cabernet sauvignon vines
- Automated drip irrigation throughout vineyard
- Remainder of property currently utilised for sheep and deer grazing
- 2 storey character stone barn (needs some restoration) adjacent to sheep handling yards and shed
- Stock troughs in each paddock with supply from header tank filled from bore
- 4 door implement shed with concrete floor plus ca service pit in main homestead yard
- Additional car shed with storage extension and concrete floor adjacent to house
- 2 x 22,000L rainwater tanks supplying house
- Homestead (restored) built of random stone in approx. 1860 with central hallway dividing 4 main rooms either side.
- 3 large bedrooms with master bedroom featuring large ensuite complete with claw foot bath, shower, w/c, sauna and own above ground cellar
- Formal dining and formal living both with open fireplace
- Country style kitchen with feature Baltic pine cabinetry and Jarrah bench tops, inclusive of integrated dishwasher, stainless steel cook top and oven plus the functional old wood stove
- Both hallway and kitchen floors are magnificent Mintaro Slate
- External laundry and second bathroom with shower, vanity and w/c under main roof
- An additional 58,000L underground rainwater tank supplying house.
So now it's time to action that goal you have read and book a time to view. Raise your glass, you no longer have to dream.
For further information on this property please contact Rachel Lawrie either by email: [email protected] or phone: 0428 882 864 RLA 281212
NOTE: The homestead/vineyard can only be purchased if whole package is secured including restaurant and winery. The vendor will accept EOI on the restaurant and winery solely without homestead/vineyard. For more photos and full site plans go to https://raywhitenorthadelaide.com.au/properties/for-sale
A dream can become a reality if visualised, written as a goal and actioned. How often have you sampled the beautiful wines from the world famous Barossa Valley region and dreamed of your own wine label? Better still, complete the vision with your own restaurant/cellar door, winery and vineyard. Well no need to write your goal down, just continue to read.
The old Springton Blacksmith's shop is a piece of history, complete with fully fitted commercial kitchen, cool room, magnificent split-level restaurant and divine wine and beer garden. Adjacent to this spectacular venue is the purpose built winery, with tasting room, office/laboratory, production area, mezzanine storage area and that sensational cellar.
Then if this opportunity appeals and you want to complete that goal, there is the restored 3 bedroom homestead circa 1860 sitting on approx. 31 hectares, including vineyard with a divine mix of shiraz and cabernet sauvignon vines. The 5 mega litre dam and licensed bore of 17,287 kilolitres approx. (inclusive of rollover), complete this dream with room for expansion.
Further information on Restaurant/Winery
- Allotment approx. 1083sqm
- Restaurant is air conditioned
- Large wood heater in the corner of main restaurant
- Crockery, cutlery, glassware, tables and chairs included
- External to winery there is a waste water storage tank emptied by local contractors
- Winery plant/equipment and stock NOT included, but can be negotiated separately
- Situated centrally in town and adjacent to the only hotel in Springton
- Ample on street and off street parking
Further information on Vineyard & Homestead
- 31Ha approx. plus 1Ha approx. water reserve
- Significant Redgums scattered through the property
- External fencing and some internal fencing replaced 3 years ago
- Licenced bore that pumps approx. 9000L/hour. Licence inclusive of roll over approx. 17,287kL
- Bore supplies water for house garden and vineyard
- 5 megalitre dam not lined
- 6Ha approx. of grape vines: Section 1 near homestead is 1997 shiraz vines, Section 2 adjacent to Cookes road 1998 combination of shiraz and cabernet sauvignon vines
- Automated drip irrigation throughout vineyard
- Remainder of property currently utilised for sheep and deer grazing
- 2 storey character stone barn (needs some restoration) adjacent to sheep handling yards and shed
- Stock troughs in each paddock with supply from header tank filled from bore
- 4 door implement shed with concrete floor plus ca service pit in main homestead yard
- Additional car shed with storage extension and concrete floor adjacent to house
- 2 x 22,000L rainwater tanks supplying house
- Homestead (restored) built of random stone in approx. 1860 with central hallway dividing 4 main rooms either side.
- 3 large bedrooms with master bedroom featuring large ensuite complete with claw foot bath, shower, w/c, sauna and own above ground cellar
- Formal dining and formal living both with open fireplace
- Country style kitchen with feature Baltic pine cabinetry and Jarrah bench tops, inclusive of integrated dishwasher, stainless steel cook top and oven plus the functional old wood stove
- Both hallway and kitchen floors are magnificent Mintaro Slate
- External laundry and second bathroom with shower, vanity and w/c under main roof
- An additional 58,000L underground rainwater tank supplying house.
So now it's time to action that goal you have read and book a time to view. Raise your glass, you no longer have to dream.
For further information on this property please contact Rachel Lawrie either by email: [email protected] or phone: 0428 882 864 RLA 281212
Property Info
Municipality
Springton
NEARBY PROPERTIES
Thank You
Your enquiry has been sent!
Enquiry is Failed
Please contact your administrator.