$700,000
17 (Lot 9) Osborne Street, Chinchilla, QLD 4413
Development Site Ready For Action
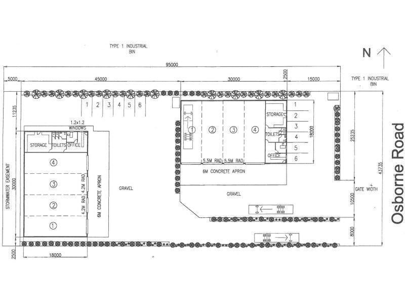
Situated in the premier Surat Basin Industrial Estate, this property has plans for Council Development Approval.
DA is for an Industrial use with either 2 x 500m2 sheds or 1 x 1000m2 shed.
Located just 2km from the Chinchilla CBD & 200m from the Warrego Highway.
Surat Basin Industrial Park includes 30m road reserve, sewerage, town water, underground power and hard stand surfaces.
Check out the www.sbipc.com.au website for more information or call the agent Bruce Holmes 0402 348 695.
To view a short video on the Surat Basin Industrial Estate presented by Mark Tonelli of Real Estate News
Click this link www.y outube.com/watch?v=IXyjMFTeYY4
DA is for an Industrial use with either 2 x 500m2 sheds or 1 x 1000m2 shed.
Located just 2km from the Chinchilla CBD & 200m from the Warrego Highway.
Surat Basin Industrial Park includes 30m road reserve, sewerage, town water, underground power and hard stand surfaces.
Check out the www.sbipc.com.au website for more information or call the agent Bruce Holmes 0402 348 695.
To view a short video on the Surat Basin Industrial Estate presented by Mark Tonelli of Real Estate News
Click this link www.y outube.com/watch?v=IXyjMFTeYY4
Property Info
Municipality
Chinchilla
Surat Basin Real Estate Chinchilla
2-1 Warrego Highway
Chinchilla, QLD 4413
Tel: +61746691790
NEARBY PROPERTIES
Warren Daniells
Thank You
Your enquiry has been sent!
Enquiry is Failed
Please contact your administrator.