$850,000
7, 140 Millaroo Drive, Helensvale, QLD 4212
Warehouse with offices for sale
Phone enquiry code for this property : 0672
This unit is located in a busy industrial area only minutes from the Pacific Motorway, Westfield Helensvale and the light and heavy rail stations.
Unit 7 is a timeless tilt-slab constructed warehouse in a low maintenance complex. It is currently tenanted at $1150/wk until August 2022.
This unit offers;
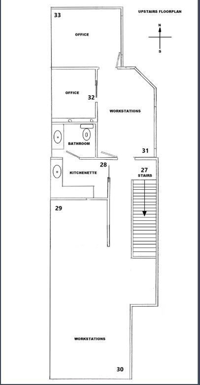
365sqm total = 202sqm offices + 163sqm warehouse
Multiple air conditioned offices and staff amenities
Newly built modern kitchen
Reception area and boardroom/showroom
Security cameras throughout
High-clearance remote control roller door
3 phase power
Solar panels installed on roof to reduce electricity bills
Easy truck/van access
6 dedicated car spaces
Zoned light/medium industrial
Small industrial complex with low outgoings
Phone enquiry code for this property : 0672
This unit is located in a busy industrial area only minutes from the Pacific Motorway, Westfield Helensvale and the light and heavy rail stations.
Unit 7 is a timeless tilt-slab constructed warehouse in a low maintenance complex. It is currently tenanted at $1150/wk until August 2022.
This unit offers;
365sqm total = 202sqm offices + 163sqm warehouse
Multiple air conditioned offices and staff amenities
Newly built modern kitchen
Reception area and boardroom/showroom
Security cameras throughout
High-clearance remote control roller door
3 phase power
Solar panels installed on roof to reduce electricity bills
Easy truck/van access
6 dedicated car spaces
Zoned light/medium industrial
Small industrial complex with low outgoings
Phone enquiry code for this property : 0672
Property Info
Municipality
Helensvale
- 6
- 264 Sqm
Triple One Group Pty Ltd Brisbane
Suite 626 12B, 198 Adelaide Street
Brisbane, QLD 4000
NEARBY PROPERTIES

Minus The Agent Sales
Thank You
Your enquiry has been sent!
Enquiry is Failed
Please contact your administrator.