Expressions of Interest closing 26 November at 5pm
15 Nerang Street, Southport, QLD 4215
Prime Freehold Building
To be sold by Expressions of Interest closing Wednesday the 26th of November at 5pm (can be sold prior). All offers submitted.
Seize this exceptional opportunity to purchase this premier retail freehold building in the heart of Southport's central business district, conveniently located opposite Australia Fair and close to Chinatown.
Property Details:
- L3 RP59362 & L2 RP99143
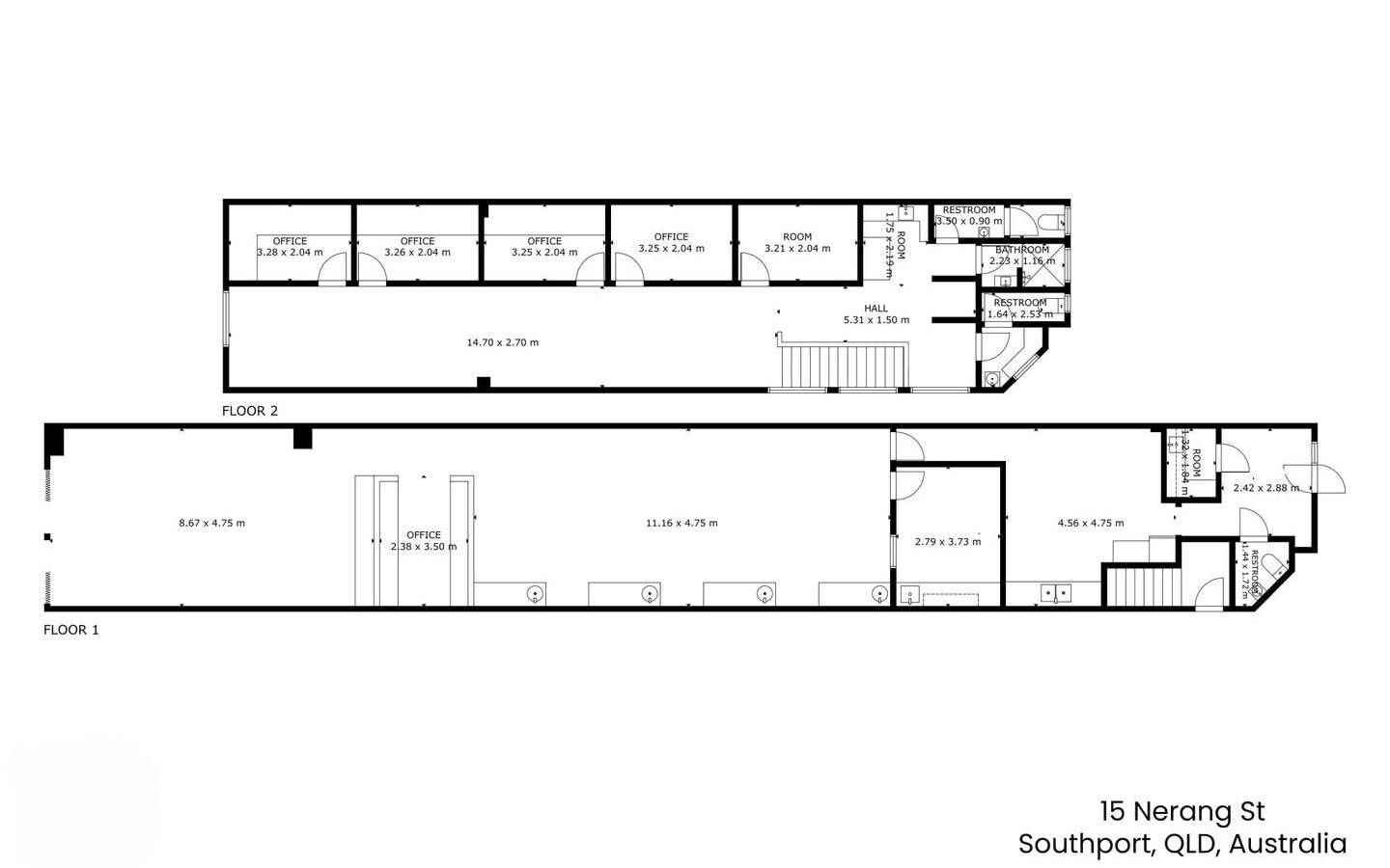
- Land Area: 358sqm
- Building Area: 310sqm
- Precinct 1 Southport PDA
- 3 car spaces
- Floor Area: Downstairs is 159sqm and Upstairs is 108sqm
- Located directly opposite Australia Fair Shopping Centre
- Council Rates $4,673.20 per half year
- Last Water Bill $264.57 for the quarter
This retail building over two levels is perfect for businesses seeking a vibrant CBD location. Benefit from high foot traffic with major retailers like Coles, Woolworths and Kmart opposite, along with a variety of cafes, restaurants and over 200* specialty shops.
Properties like this are seldomly available so don't miss your chance to secure this premier freehold building in one of Southport's most sought-after areas.
Bob Rollington 0411 427 311
First National Surfers Paradise.
Seize this exceptional opportunity to purchase this premier retail freehold building in the heart of Southport's central business district, conveniently located opposite Australia Fair and close to Chinatown.
Property Details:
- L3 RP59362 & L2 RP99143
- Land Area: 358sqm
- Building Area: 310sqm
- Precinct 1 Southport PDA
- 3 car spaces
- Floor Area: Downstairs is 159sqm and Upstairs is 108sqm
- Located directly opposite Australia Fair Shopping Centre
- Council Rates $4,673.20 per half year
- Last Water Bill $264.57 for the quarter
This retail building over two levels is perfect for businesses seeking a vibrant CBD location. Benefit from high foot traffic with major retailers like Coles, Woolworths and Kmart opposite, along with a variety of cafes, restaurants and over 200* specialty shops.
Properties like this are seldomly available so don't miss your chance to secure this premier freehold building in one of Southport's most sought-after areas.
Bob Rollington 0411 427 311
First National Surfers Paradise.
Property Info
Municipality
Southport
Thank You
Your enquiry has been sent!
Enquiry is Failed
Please contact your administrator.