Contact Agent
18, 6 Aristos Place, Winnellie, NT 0820
Around At Aristos!
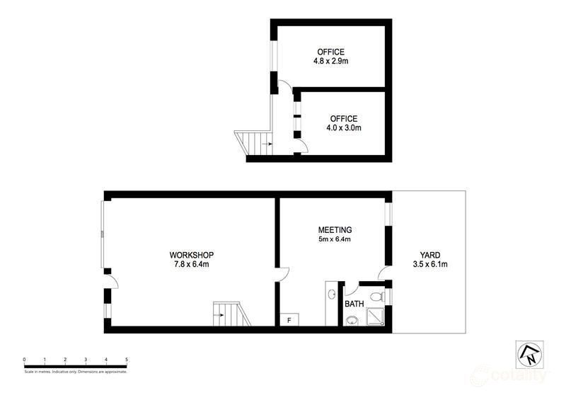
The property forms part of a 4,970sqm general industry zoned land development, featuring 27 strata-titled, compact office warehouses. Unit 18 offers a total gross floor area of 86sqm, including a 20sqm air-conditioned office, kitchen and shower/toilet. Includes a convenient 31sqm yard area at the rear of the property with featured stone stop bar area & portable spa.
Up stairs is additional 2 air conditioned office spaces.
Offering affordable space for the owner operator, small business or simply space for personal storage.
Land size on title 144m2
Masonry block construction
Amenities - shower & toilet
Roller door access & security door
Rear yard area approx. 30m2 - security fenced
Wide driveway
Good vehicle access
6-7 % rental return
Body Corp - Castle Real Estate approx $1000pq
Up stairs is additional 2 air conditioned office spaces.
Offering affordable space for the owner operator, small business or simply space for personal storage.
Land size on title 144m2
Masonry block construction
Amenities - shower & toilet
Roller door access & security door
Rear yard area approx. 30m2 - security fenced
Wide driveway
Good vehicle access
6-7 % rental return
Body Corp - Castle Real Estate approx $1000pq
Property Info
Municipality
Winnellie
Thank You
Your enquiry has been sent!
Enquiry is Failed
Please contact your administrator.