$6,417.66 pm
9 Longworth Close, Mcdougalls Hill, NSW 2330
Under Construction | Exciting New Development
Exciting New Development – Limited Opportunity Available Early November 2025!
Be part of this boutique industrial complex of just 4 modern sheds, with construction commencing in June 2025. Get in early to secure your space and customise your fit-out before build completion!
Key Features:
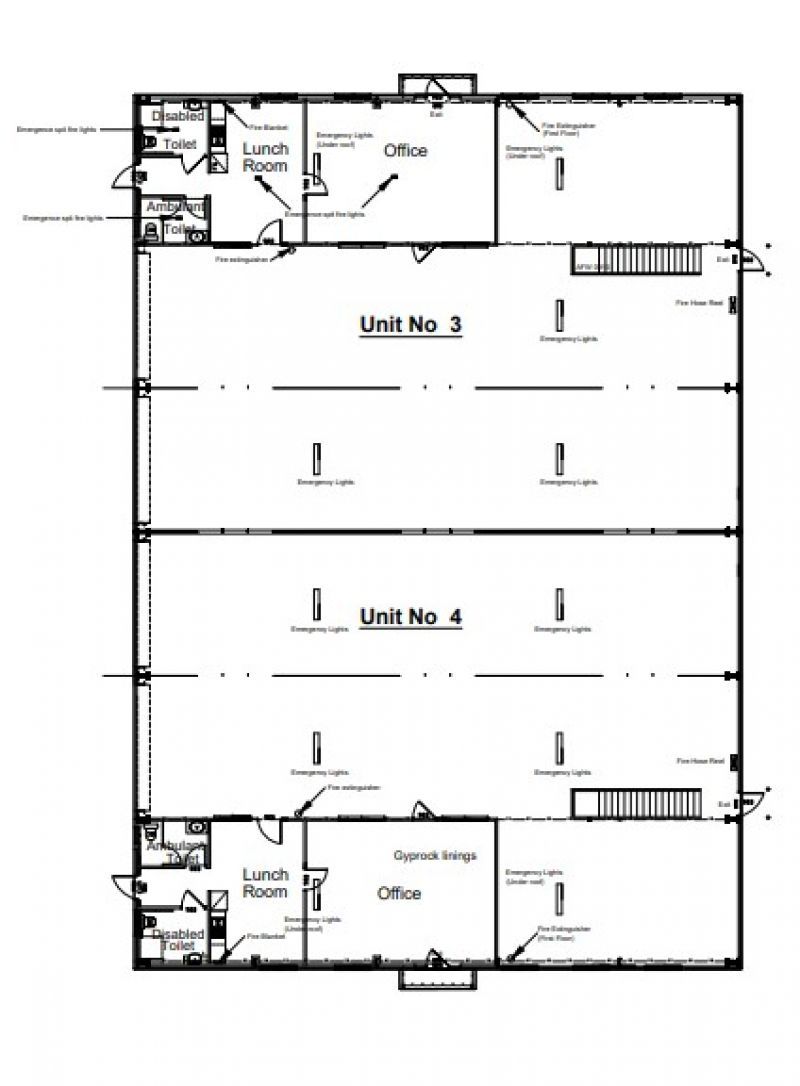
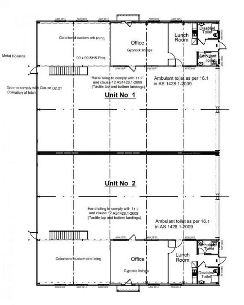
Office & Lunchroom: 85m² of modern, air-conditioned space - perfect for administration and staff amenities.
Workshop Area: 375m² high-clearance workshop with excellent access - ideal for manufacturing, fabrication, or mechanical services.
Mezzanine Level: 144m² of additional operational or storage space to enhance your business capabilities.
Total Floor Area: Approx. 604m² per shed.
Small Complex of 4 Units: Enjoy the benefits of a low-density, secure, and professional environment.
Secure Premises: Fully fenced with ample parking and easy maneuvering space for vehicles and equipment.
Flexible Leasing Terms: Tailored options to suit a range of business needs.
Ideal for:
Manufacturing and fabrication businesses, automotive or mechanical service providers, storage and distribution centres, trade workshops, and other industrial enterprises.
Opportunities like this are rare - act now to secure your position in this exclusive new complex and add your finishing touches before completion!
Reach out today for more information and property plans
** Photos included in advertisement are indicitive only **
                        
                    Be part of this boutique industrial complex of just 4 modern sheds, with construction commencing in June 2025. Get in early to secure your space and customise your fit-out before build completion!
Key Features:
Office & Lunchroom: 85m² of modern, air-conditioned space - perfect for administration and staff amenities.
Workshop Area: 375m² high-clearance workshop with excellent access - ideal for manufacturing, fabrication, or mechanical services.
Mezzanine Level: 144m² of additional operational or storage space to enhance your business capabilities.
Total Floor Area: Approx. 604m² per shed.
Small Complex of 4 Units: Enjoy the benefits of a low-density, secure, and professional environment.
Secure Premises: Fully fenced with ample parking and easy maneuvering space for vehicles and equipment.
Flexible Leasing Terms: Tailored options to suit a range of business needs.
Ideal for:
Manufacturing and fabrication businesses, automotive or mechanical service providers, storage and distribution centres, trade workshops, and other industrial enterprises.
Opportunities like this are rare - act now to secure your position in this exclusive new complex and add your finishing touches before completion!
Reach out today for more information and property plans
** Photos included in advertisement are indicitive only **
Property Info
Municipality
                            Mcdougalls Hill
                        Thank You
Your enquiry has been sent!
Enquiry is Failed
Please contact your administrator.
 
                             Email Us
                        Email Us