Contact Agent
11 Essex Rd, Mount Waverley, VIC 3149
Rare Essex Road Freehold Opportunity
BigginScott Mitcham Commercial is pleased to offer 11 Essex St, Mount Waverley, VIC 3149 FOR SALE
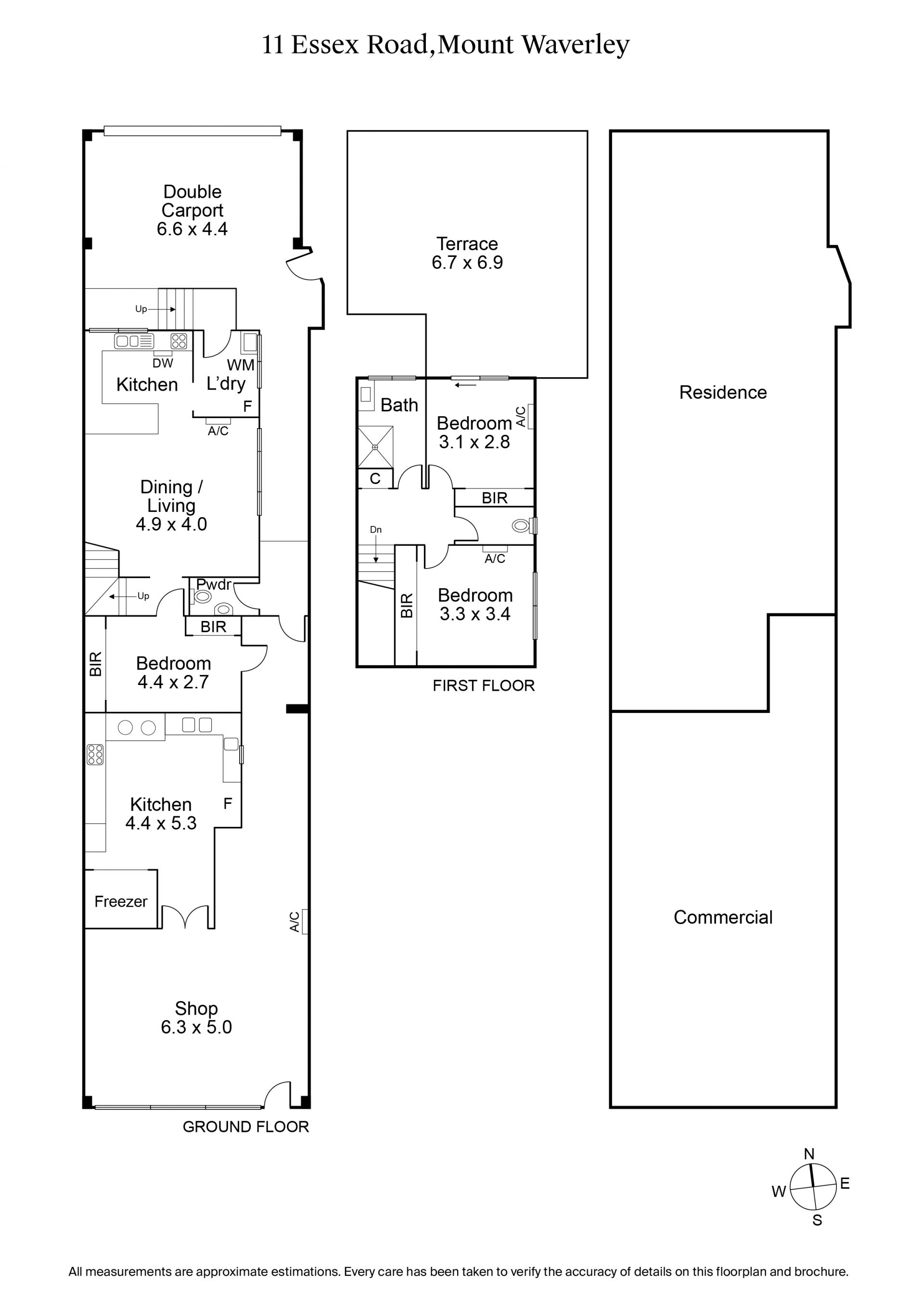
Located in the heart of the affluent suburb of Mount Waverley, the freehold property offers home/business owners and investors a rare opportunity to secure a prized property in a key location with a range of exciting possibilities for Commercial, Business and Residential. Don’t miss this opportunity to purchase a perfect freehold, street fronted shop in a busy retail area. With a long established business and commercial kitchen, and a well maintained three bedroom residential building attached.
The two-story residential building has a separate entrance from the rear of the Essex Road shops. It comprises of three bedrooms with BIR's, lounge/meals area, kitchen with gas cooking and laundry. Also features a huge balcony /terrace with beautiful city view and a locked up double carport.
Property Highlights:
- Amazing opportunity to own this rare commercial and residential building.
- Land size 195 sqm (approx.)
- Front ground floor currently is a long standing, acclaimed retail/restaurant business
- Back building is residential
- Tightly held location in a busy retail precinct, close to high regarded public schools and public transport
- Significant scope to add value
- Energy Cost saving with Solar power
For further information and/or to arrange a private inspection, please contact the exclusive selling agents.
Located in the heart of the affluent suburb of Mount Waverley, the freehold property offers home/business owners and investors a rare opportunity to secure a prized property in a key location with a range of exciting possibilities for Commercial, Business and Residential. Don’t miss this opportunity to purchase a perfect freehold, street fronted shop in a busy retail area. With a long established business and commercial kitchen, and a well maintained three bedroom residential building attached.
The two-story residential building has a separate entrance from the rear of the Essex Road shops. It comprises of three bedrooms with BIR's, lounge/meals area, kitchen with gas cooking and laundry. Also features a huge balcony /terrace with beautiful city view and a locked up double carport.
Property Highlights:
- Amazing opportunity to own this rare commercial and residential building.
- Land size 195 sqm (approx.)
- Front ground floor currently is a long standing, acclaimed retail/restaurant business
- Back building is residential
- Tightly held location in a busy retail precinct, close to high regarded public schools and public transport
- Significant scope to add value
- Energy Cost saving with Solar power
For further information and/or to arrange a private inspection, please contact the exclusive selling agents.
Property Info
Municipality
Mount Waverley
Thank You
Your enquiry has been sent!
Enquiry is Failed
Please contact your administrator.