$650,000
27 Skinner Street, South Grafton, NSW 2460
SECURE A NET YIELD OVER 7%
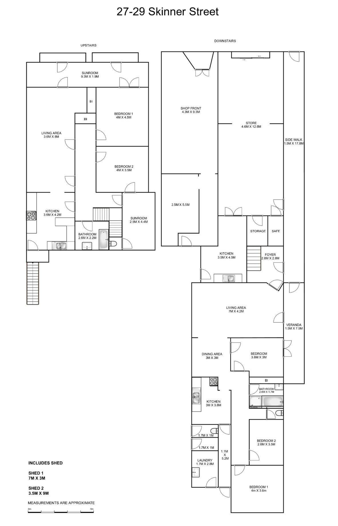
* 1063 sqm with 2 x commercial tenancies and 2 x residential tenancies
* Frontage to Skinner St and Through Lane
* Plenty of space at rear for further development
* Zoning E2 Commercial Centre
RENTS:
* Downstairs 3 bed 1 bath residence $380 per week
* Upstairs 2.5 bed 1 bath residence $430 per week
* Gift shop $1086 per month + GST
* Hairdresser shop $1000 per month + GST
TOTAL ANNUAL RENT: $67 152
OUTGOINGS:
Building Insurance: $10695 p.a.
Council Rates: $4676 p.a.
Water & Sewer: Approx $3900 p.a.
TOTAL LISTED OUTGOINGS: $19271
NET RETURN: $47881 p.a.
Like so many commercial buildings in South Grafton, 27 Skinner St is rich in history.
Originally built c. 1923 by local builders Strauss & Son, the original proprietor was J.C. Lane a local chemist who later went onto become Mayor of South Grafton from 1942 - 1950.
When it was built it would have been quite cutting-edge, as its architect F.J. Board of Lismore had not worked much in Grafton, and local historical documents explain "This building is architecturally significant for its well proportioned symmetrical facade and carefully executed cement render bands and mouldings which have a strong Art Nouveau motif. This is a unique building type for Grafton derived from late Edwardian predilections."
This is an opportunity to purchase nearly $50k per year in net yield whilst enjoying ample vacant land to further develop.
* Frontage to Skinner St and Through Lane
* Plenty of space at rear for further development
* Zoning E2 Commercial Centre
RENTS:
* Downstairs 3 bed 1 bath residence $380 per week
* Upstairs 2.5 bed 1 bath residence $430 per week
* Gift shop $1086 per month + GST
* Hairdresser shop $1000 per month + GST
TOTAL ANNUAL RENT: $67 152
OUTGOINGS:
Building Insurance: $10695 p.a.
Council Rates: $4676 p.a.
Water & Sewer: Approx $3900 p.a.
TOTAL LISTED OUTGOINGS: $19271
NET RETURN: $47881 p.a.
Like so many commercial buildings in South Grafton, 27 Skinner St is rich in history.
Originally built c. 1923 by local builders Strauss & Son, the original proprietor was J.C. Lane a local chemist who later went onto become Mayor of South Grafton from 1942 - 1950.
When it was built it would have been quite cutting-edge, as its architect F.J. Board of Lismore had not worked much in Grafton, and local historical documents explain "This building is architecturally significant for its well proportioned symmetrical facade and carefully executed cement render bands and mouldings which have a strong Art Nouveau motif. This is a unique building type for Grafton derived from late Edwardian predilections."
This is an opportunity to purchase nearly $50k per year in net yield whilst enjoying ample vacant land to further develop.
Property Info
Municipality
South Grafton
Thank You
Your enquiry has been sent!
Enquiry is Failed
Please contact your administrator.