P.O.A.
1655 Sydney Road, Campbellfield, VIC 3061
Corner Position
An exceptional high profile corner block, tenanted by an established medical professional makes this Sydney Road property a worthy investment.
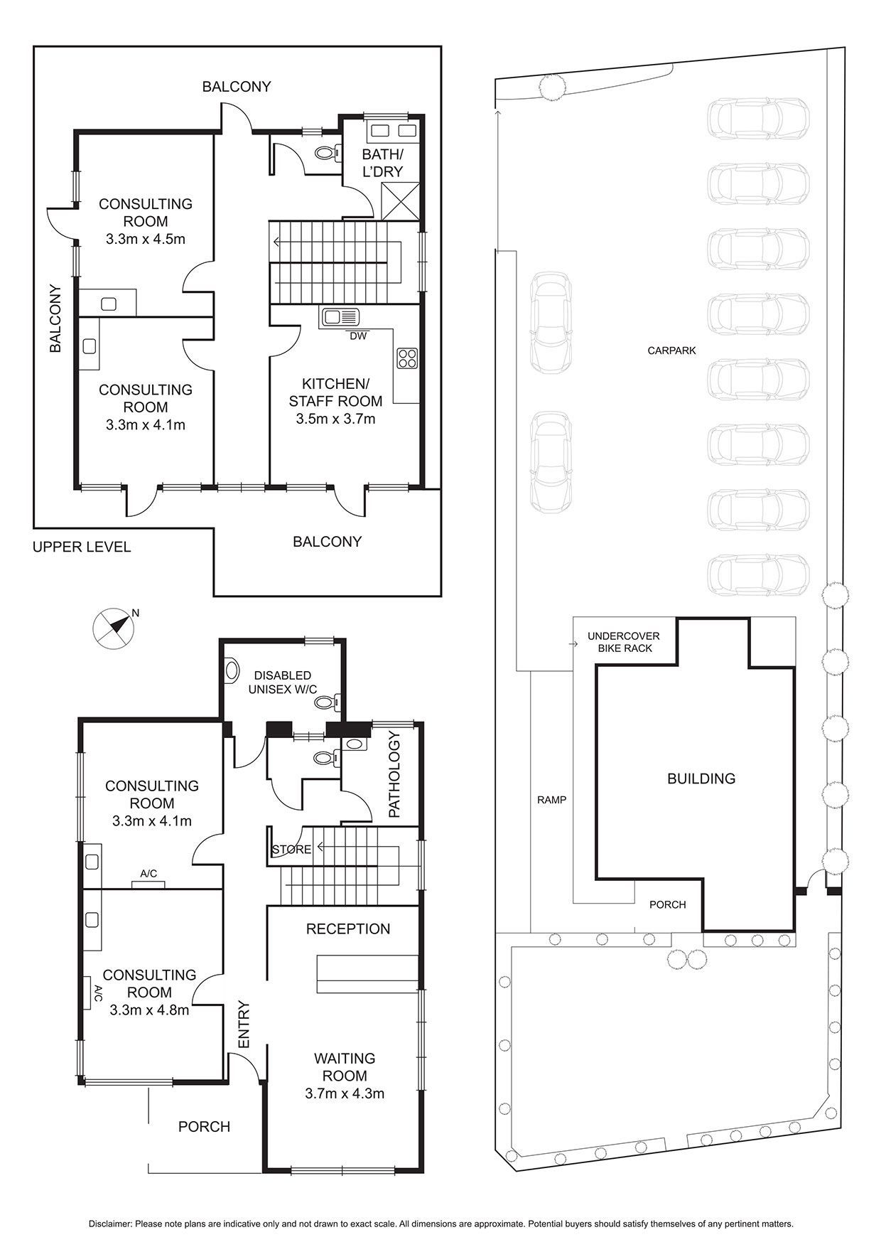
The building consists of two consulting rooms, a staff room, kitchen and toilet upstairs and two consulting rooms, reception/waiting room, a pathology room and two separate toilets, one being setup to cater for patients with disabilities on the ground floor. The rear car park has a capacity for 10 cars.
A new 5-year lease was entered into on the 1st of April 2024 with a monthly return of $4,418.80 with a fixed rate increase annually on the anniversary date. The lease provides the option of two further 5-year terms should the current tenant wish to exercise their right to renew. Tenant is responsible for payment of outgoings including Landlord Insurance as noted in the lease.
With a land size of approximately 670m2 and currently zoned "General Residential 1" this corner lot on a primary road offer future potential. (STCA)
The building consists of two consulting rooms, a staff room, kitchen and toilet upstairs and two consulting rooms, reception/waiting room, a pathology room and two separate toilets, one being setup to cater for patients with disabilities on the ground floor. The rear car park has a capacity for 10 cars.
A new 5-year lease was entered into on the 1st of April 2024 with a monthly return of $4,418.80 with a fixed rate increase annually on the anniversary date. The lease provides the option of two further 5-year terms should the current tenant wish to exercise their right to renew. Tenant is responsible for payment of outgoings including Landlord Insurance as noted in the lease.
With a land size of approximately 670m2 and currently zoned "General Residential 1" this corner lot on a primary road offer future potential. (STCA)
Property Info
Municipality
Campbellfield
Thank You
Your enquiry has been sent!
Enquiry is Failed
Please contact your administrator.