Contact Agent
Shops 2&3/43-49 Blaxland Road, Ryde, NSW 2112
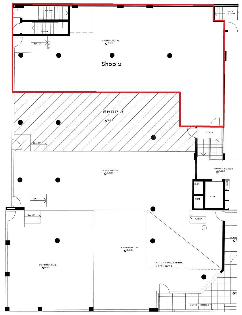
Retail | Commercial Leasing Opportunity | Ryde
HillCo Property Group is pleased to offer this unique opportunity to secure a prime position retail/showroom situated on the corner of Blaxland Road and Argyle Avenue within the 'Alanis' development:
Features:
+ 238 sqm (approx.) of retail/showroom space
+ Potential to Lease Two (2) 90 sqm and 148 sqm shops individually or together in one line
+ Each shop includes Three (3) secure car spaces
+ Suites retail, showroom, medical, allied health or professional services
+ Potential to convert to F&B with grease trap and exhaust available
+ Concrete floors with high ceilings
+ Male/Female bathroom facilities in common areas, plus additional visitor parking within the building
43-49 Blaxland Road is centrally located 2 minutes walk from Top Ryde Shopping Centre, and set amongst popular local operators such as KOI Dessert Kitchen, Pizza Hut and The Royal Hotel.
Features:
+ 238 sqm (approx.) of retail/showroom space
+ Potential to Lease Two (2) 90 sqm and 148 sqm shops individually or together in one line
+ Each shop includes Three (3) secure car spaces
+ Suites retail, showroom, medical, allied health or professional services
+ Potential to convert to F&B with grease trap and exhaust available
+ Concrete floors with high ceilings
+ Male/Female bathroom facilities in common areas, plus additional visitor parking within the building
43-49 Blaxland Road is centrally located 2 minutes walk from Top Ryde Shopping Centre, and set amongst popular local operators such as KOI Dessert Kitchen, Pizza Hut and The Royal Hotel.
Property Info
Municipality
Ryde
Thank You
Your enquiry has been sent!
Enquiry is Failed
Please contact your administrator.