Contact Agent
1/25 Penong Avenue, Camden Park, SA 5038
Suburban Trade and Distribution Facility
Situated in the quiet suburb of Camden Park, this property offers easy access to Anzac Highway without the congestion.
It is perfectly designed for trade or a startup distribution business looking to be closer to their customer base. The property is fitted with a modern reception, efficient workspaces and ample storage accessed via a roller door for convenience.
The property is a must see!
Property Use: Commercial / Warehouse
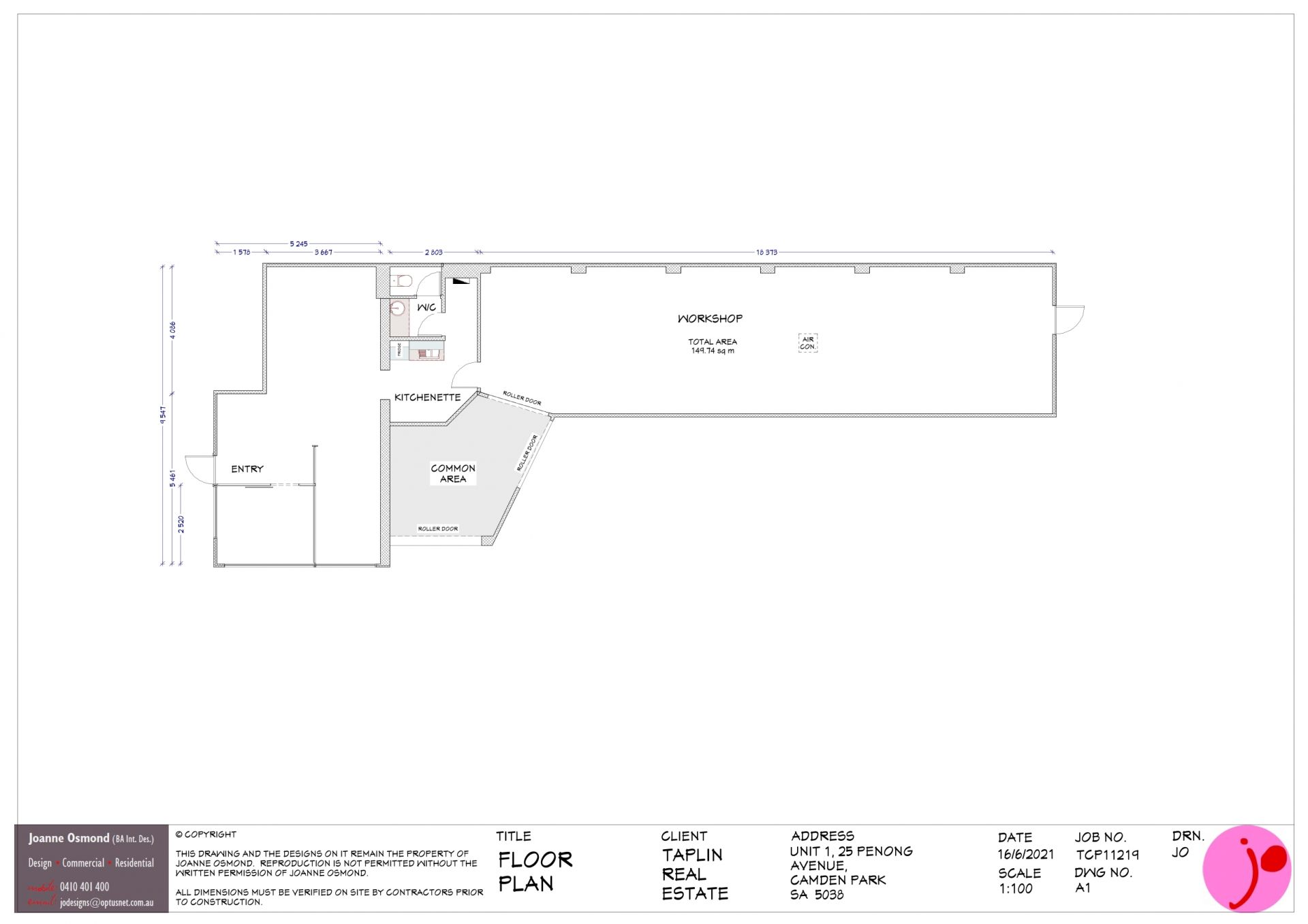
Lettable Area: 150 m2
Useable Area: Office 60 m2
Warehouse 90 m2
Parking: 1 Bay
Minimum Lease term: 3 Years
Options: 2 Years
Availability: 1 October 2024
Proximity: Anzac Highway - 700m
Immanuel School - 800m
TAPLIN GROUP OF COMPANIES – RLA 1856
#Taplin #TaplinGroup #Taplin Real Estate
It is perfectly designed for trade or a startup distribution business looking to be closer to their customer base. The property is fitted with a modern reception, efficient workspaces and ample storage accessed via a roller door for convenience.
The property is a must see!
Property Use: Commercial / Warehouse
Lettable Area: 150 m2
Useable Area: Office 60 m2
Warehouse 90 m2
Parking: 1 Bay
Minimum Lease term: 3 Years
Options: 2 Years
Availability: 1 October 2024
Proximity: Anzac Highway - 700m
Immanuel School - 800m
TAPLIN GROUP OF COMPANIES – RLA 1856
#Taplin #TaplinGroup #Taplin Real Estate
Property Info
Municipality
Camden Park
Thank You
Your enquiry has been sent!
Enquiry is Failed
Please contact your administrator.