$350 per sqm + Outgoings + GST
Unit 8, 809-813 Port Rd, Woodville, SA 5011
Modern Retail/Office/Consulting Space FOR LEASE in Woodville
THREE (3) TENANCIES AVAILABLE
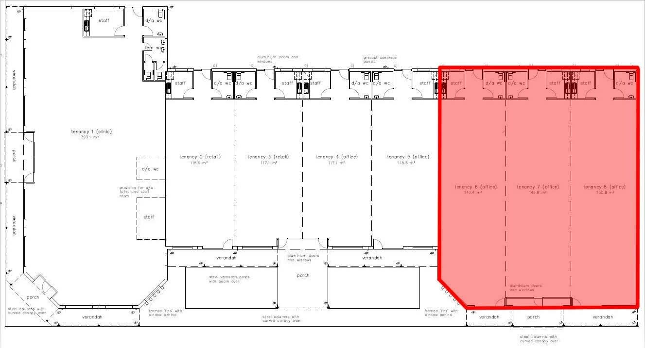
Total Building Area of 445.1 SQM* (Can be leased out together or individually)
Available from January 2025
TENANCY 6 (SHOP 3)- 809-813 PORT ROAD, WOODVILLE – 147.4 SQM*
Features of the property include:
- Retail/Office/Consulting Space
- Total Lettable Area of 147.4 sqm* (approx.)
- Toilet Amenities
- Open Floorplan Tenancy
- Ample Car Parking
- Flexible Terms and Conditions
TENANCY 7(SHOP 2) - 809-813 PORT ROAD, WOODVILLE – 146.8 SQM*
Features of the property include:
- Retail/Office/Consulting Space
- Total Lettable Area of 146.8 sqm* (approx.)
- Toilet Amenities
- Open Floorplan Tenancy
- Ample Car Parking
- Flexible Terms and Conditions
TENANCY 8 (SHOP 1) - 809-813 PORT ROAD, WOODVILLE – 150.9 SQM*
Features of the property include:
- Retail/Office/Consulting Space
- Total Lettable Area of 150.9 sqm* (approx.)
- Toilet Amenities
- Open Floorplan Tenancy
- Ample Car Parking
- Flexible Terms and Conditions
INSPECTION IS A MUST.
If you would like to inspect the property, please contact Jordan House on 0405 488 052, Pasquale Mastrangelo 0409 465 863 or our Landline on (08) 8212 0140.
Property Code: 2508
Total Building Area of 445.1 SQM* (Can be leased out together or individually)
Available from January 2025
TENANCY 6 (SHOP 3)- 809-813 PORT ROAD, WOODVILLE – 147.4 SQM*
Features of the property include:
- Retail/Office/Consulting Space
- Total Lettable Area of 147.4 sqm* (approx.)
- Toilet Amenities
- Open Floorplan Tenancy
- Ample Car Parking
- Flexible Terms and Conditions
TENANCY 7(SHOP 2) - 809-813 PORT ROAD, WOODVILLE – 146.8 SQM*
Features of the property include:
- Retail/Office/Consulting Space
- Total Lettable Area of 146.8 sqm* (approx.)
- Toilet Amenities
- Open Floorplan Tenancy
- Ample Car Parking
- Flexible Terms and Conditions
TENANCY 8 (SHOP 1) - 809-813 PORT ROAD, WOODVILLE – 150.9 SQM*
Features of the property include:
- Retail/Office/Consulting Space
- Total Lettable Area of 150.9 sqm* (approx.)
- Toilet Amenities
- Open Floorplan Tenancy
- Ample Car Parking
- Flexible Terms and Conditions
INSPECTION IS A MUST.
If you would like to inspect the property, please contact Jordan House on 0405 488 052, Pasquale Mastrangelo 0409 465 863 or our Landline on (08) 8212 0140.
Property Code: 2508
Property Info
Municipality
Woodville
Thank You
Your enquiry has been sent!
Enquiry is Failed
Please contact your administrator.