Contact Agent
22-24 Grote Street (Ground), Adelaide, SA 5000
RARE OPPORTUNITY TO ESTABLISH OR RELOCATE YOUR BUSINESS IN A LANDMARK CBD PROPERTY
The property is metres away from Victoria Square, directly opposite Hilton Hotel and Adelaide Central Market precinct, with major development "Market Square" under construction across the road.
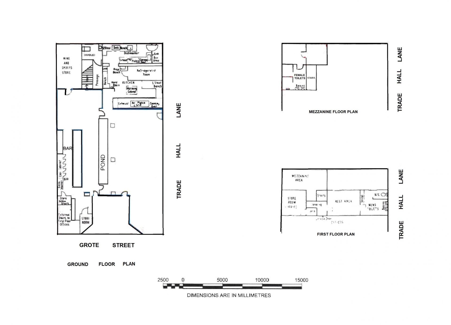
Area available comprises ground level with associated mezzanine, inclusive of toilet amenities, with total lettable area of approx. 330 sqm.
The premises have been utilised as Licensed Restaurant for many years and a Licence for about 120 persons was included.
Certain built-in kitchen infrastructure remains in place.
Suited to continued us as a Licensed Restaurant or conversion to retail/offices or other use.
For further details and inspection, contact Sole Leasing/Managing Agents, George Zogopoulos, 8410 6444 or 0412 824 278
Area available comprises ground level with associated mezzanine, inclusive of toilet amenities, with total lettable area of approx. 330 sqm.
The premises have been utilised as Licensed Restaurant for many years and a Licence for about 120 persons was included.
Certain built-in kitchen infrastructure remains in place.
Suited to continued us as a Licensed Restaurant or conversion to retail/offices or other use.
For further details and inspection, contact Sole Leasing/Managing Agents, George Zogopoulos, 8410 6444 or 0412 824 278
Property Info
Municipality
Adelaide
Thank You
Your enquiry has been sent!
Enquiry is Failed
Please contact your administrator.