Contact Agent
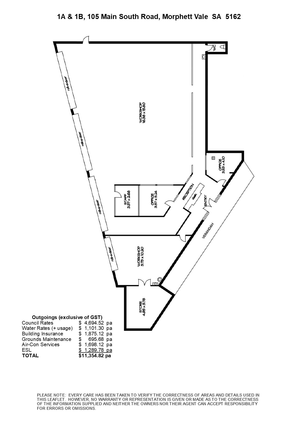
1A & 1B, 105 Main South Road, Morphett Vale, SA 5162
AUTOMOTIVE WORKSHOP FACILITY OF 407 SQM
• 5 bay mechanical workshop
• Reception, office and waiting room
• Rear access with 4 roller doors
• High clearance
• 3 phase power
• Excellent main road exposure
For more information or to arrange an inspection please contact Nic Jordan on 0416 217 219.
RLA 510
• Reception, office and waiting room
• Rear access with 4 roller doors
• High clearance
• 3 phase power
• Excellent main road exposure
For more information or to arrange an inspection please contact Nic Jordan on 0416 217 219.
RLA 510
Property Info
Municipality
Morphett Vale
Thank You
Your enquiry has been sent!
Enquiry is Failed
Please contact your administrator.