Contact Agent
Unit 7, 42 Bundall Rd, Bundall, QLD 4217
High Exposure Fully Fitted Office/Showroom For lease
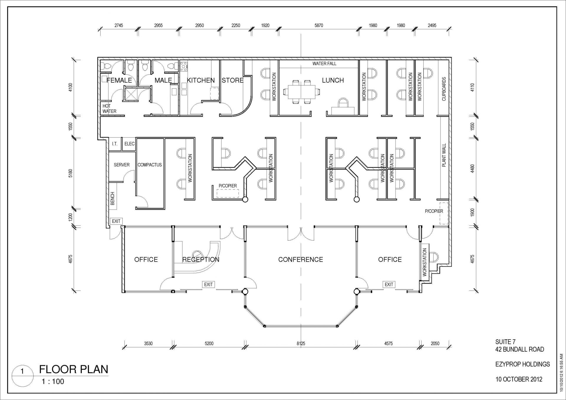
Delmege Agency Gold Coast is pleased to present to the market a centrally positioned ground-floor professional office opportunity at 42 Bundall Road Bundall. Located in the strong trading Pegasus Centre. This opportunity is unique, boasting an impressive, fully fit office space with built in desk pods ready to move in and start working.
A-Grade Office Space With a high-set Fit-out
- 468m2 Office/Showroom
- Front reception area
- Large boardroom and separate meeting room
- Two large training rooms/offices
- Open plan office environment
- Brand New ducted air-conditioning installed July 2023 ($100K cost)
- Kitchen area and separate lunchroom
- Male & Female amenities
- Store room
- Server Room - New Fibre 8M link
- Office has been designed to holdover 30 staff
- Current Fit out is Green Interior Award Winner
- 12 allocated basement car parks
- 2 car spaces directly out the front
- Total of 14 car parks
For Further Information on this exceptional opportunity, please contact Marco Kuzmanovski 0490 177 683.
Property Code: 225
A-Grade Office Space With a high-set Fit-out
- 468m2 Office/Showroom
- Front reception area
- Large boardroom and separate meeting room
- Two large training rooms/offices
- Open plan office environment
- Brand New ducted air-conditioning installed July 2023 ($100K cost)
- Kitchen area and separate lunchroom
- Male & Female amenities
- Store room
- Server Room - New Fibre 8M link
- Office has been designed to holdover 30 staff
- Current Fit out is Green Interior Award Winner
- 12 allocated basement car parks
- 2 car spaces directly out the front
- Total of 14 car parks
For Further Information on this exceptional opportunity, please contact Marco Kuzmanovski 0490 177 683.
Property Code: 225
Property Info
Municipality
Bundall
Thank You
Your enquiry has been sent!
Enquiry is Failed
Please contact your administrator.