$1,800,000
311-317 Argent Street, Broken Hill, NSW 2880
THE GRAND
'The Grand' is an iconic Broken Hill building located in the heart of the Central Business District. The building has maximum exposure, being located across from the Post Office and having extensive frontage to the town square which is due to be redeveloped.
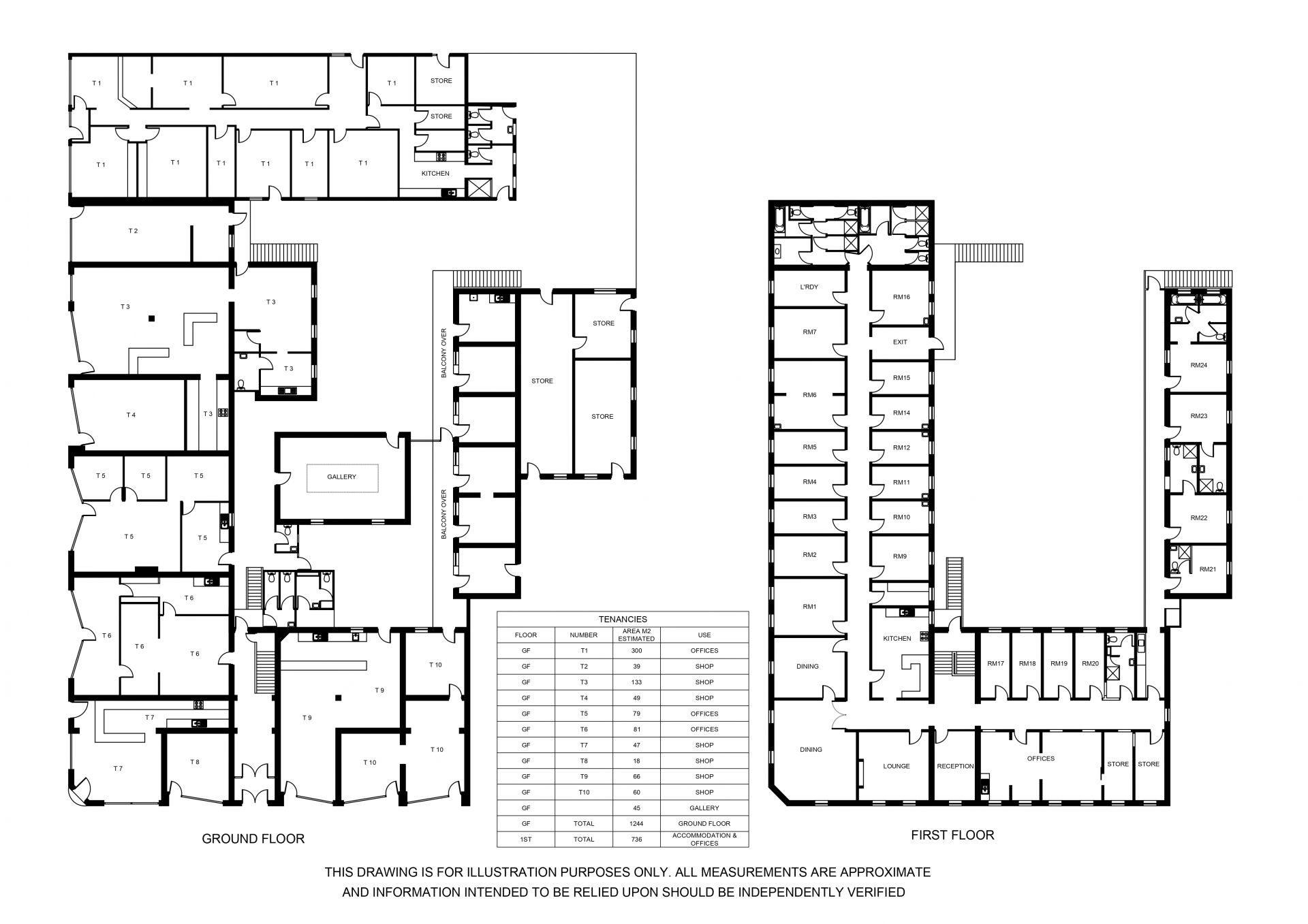
The ground level is currently leased to 11 separate tenancies. All tenancies vary in size and age of improvements, layout and approximate size of leased sites can be viewed via the floor plan provided. The property has been owned by the current owners for 41 years and has undergone regular ongoing maintenance along with roof replacement in 2018.
The first floor is currently leased to a single tenant however it has been utilised as a bed and breakfast in years gone by.
There is onsite parking for multiple vehicles.
Information Memorandum available upon request.
Please see link below to make an offer on this property
https://www.cognitoforms.com/century21mcleods/century21mcleodsbrokenhill
We have obtained all information in this document from sources we believe to be reliable; however, we cannot guarantee its accuracy. Prospective purchasers are advised to carry out their own investigations.
Council Rates: approx. $14,915 per annum
Water Rates: approx. $5,751 per annum
Agents Note:
The property will remain on the market and offers will be presented to the vendor/s up until an exchange of contract has occurred.
The ground level is currently leased to 11 separate tenancies. All tenancies vary in size and age of improvements, layout and approximate size of leased sites can be viewed via the floor plan provided. The property has been owned by the current owners for 41 years and has undergone regular ongoing maintenance along with roof replacement in 2018.
The first floor is currently leased to a single tenant however it has been utilised as a bed and breakfast in years gone by.
There is onsite parking for multiple vehicles.
Information Memorandum available upon request.
Please see link below to make an offer on this property
https://www.cognitoforms.com/century21mcleods/century21mcleodsbrokenhill
We have obtained all information in this document from sources we believe to be reliable; however, we cannot guarantee its accuracy. Prospective purchasers are advised to carry out their own investigations.
Council Rates: approx. $14,915 per annum
Water Rates: approx. $5,751 per annum
Agents Note:
The property will remain on the market and offers will be presented to the vendor/s up until an exchange of contract has occurred.
Property Info
Municipality
Broken Hill
Thank You
Your enquiry has been sent!
Enquiry is Failed
Please contact your administrator.