$125,000 + GST pa
Brookvale, NSW 2100
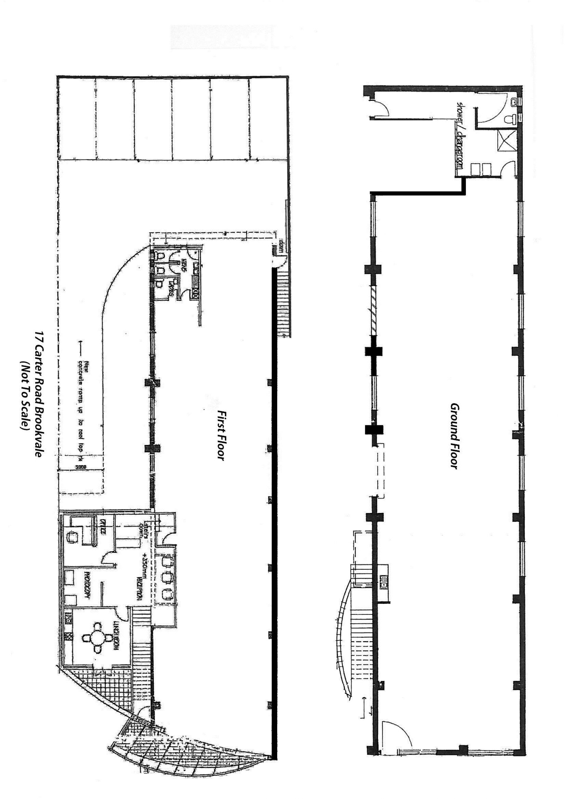
MODERN GROUND FLOOR WAREHOUSE / SHOWROOM SPACE
Rare opportunity to occupy modern premises, in Brookvale's Industrial / Automotive district. Constructed over 2 levels, there is ample area for showroom, parking and storage areas. Parking on site, and large glass frontage making it versatile for a variety of commercial, industrial & bulky goods users; Key Features include:
* Dual Roller doors
* Close to All trade suppliers
* High exposure to passing traffic
* Easy access to major arterial roads
* Would also suit a trade supplier
* Full amenities including shower
* Signage Potential & Maximum frontage
Easily accessed off Pittwater Road, West and Winbourne Roads. Join other thriving businesses such as Titan Ford, McCreath, Ultra Tune and Mazda. Fantastic premises with limitless potential.
* Dual Roller doors
* Close to All trade suppliers
* High exposure to passing traffic
* Easy access to major arterial roads
* Would also suit a trade supplier
* Full amenities including shower
* Signage Potential & Maximum frontage
Easily accessed off Pittwater Road, West and Winbourne Roads. Join other thriving businesses such as Titan Ford, McCreath, Ultra Tune and Mazda. Fantastic premises with limitless potential.
PROPERTY FEATURES
- Air Conditioning
- 3 Phase Power
- Car Parking - Surface
- Close to Schools
- Close to Shops
- Close to Transport
Property Info
Municipality
Brookvale
Thank You
Your enquiry has been sent!
Enquiry is Failed
Please contact your administrator.