Contact Agent
3a/24 Mason Street, Warragul, VIC 3820
Fantastic Leasing Opportunity!
Located on the brink of Warragul's CBD, this commercial premises provides high exposure for businesses. With two titles on the allotment, the premises is ready to be taken to its highest business potential.
Features include:
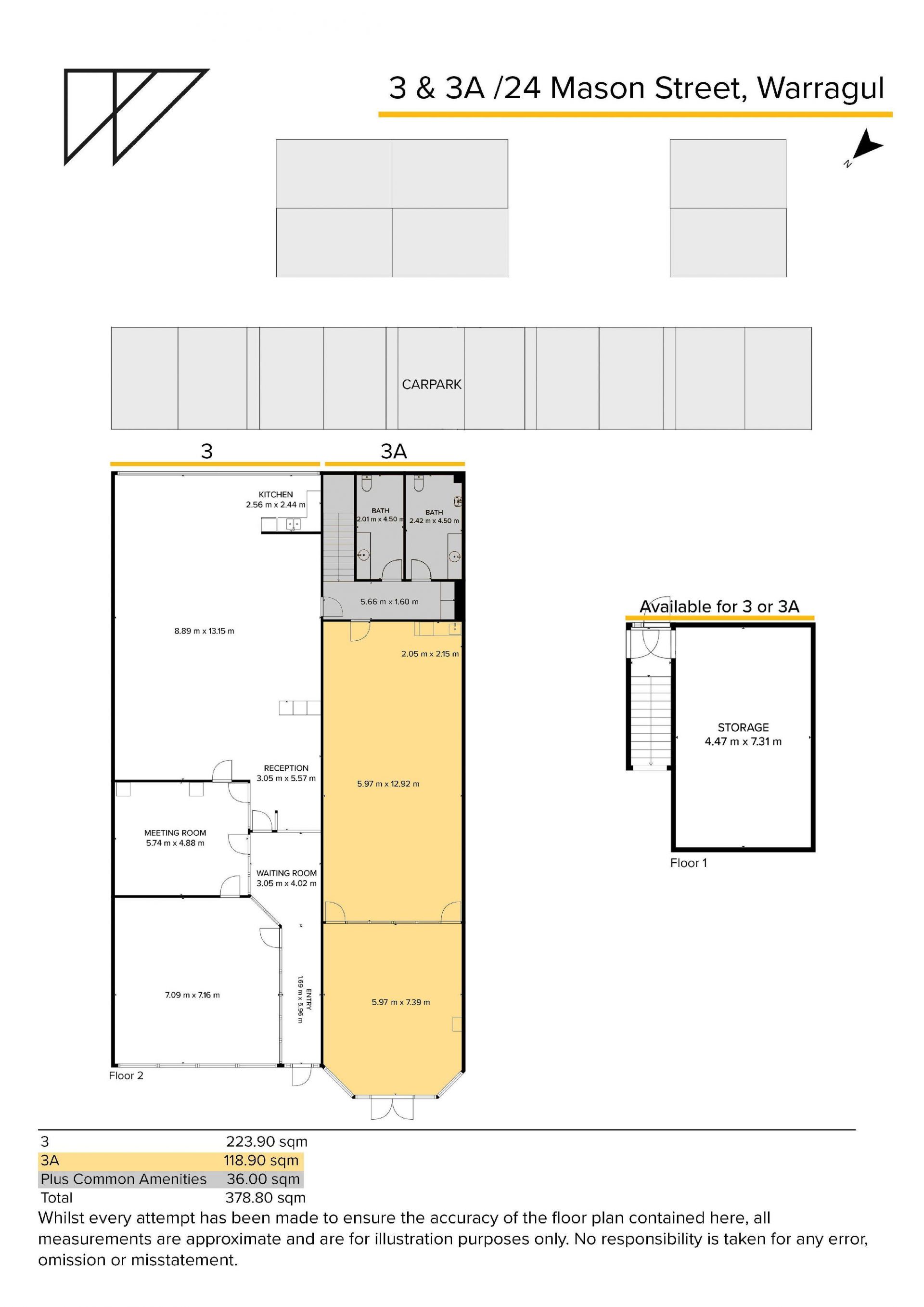
- Internal area 118.9sqm + 36sqm in common amenities
- Large open office space with reception set up at entrance
- Expansive glass window frontage
- Heating & cooling throughout
- Great rear onsite private parking & Street parking available
- Common amenities include disability accessible M & F toilets
Features include:
- Internal area 118.9sqm + 36sqm in common amenities
- Large open office space with reception set up at entrance
- Expansive glass window frontage
- Heating & cooling throughout
- Great rear onsite private parking & Street parking available
- Common amenities include disability accessible M & F toilets
Property Info
Municipality
Warragul
Thank You
Your enquiry has been sent!
Enquiry is Failed
Please contact your administrator.