$3,150,000
70 Norwood Road (previously O'Connell Street), Vineyard, NSW 2765
Rare Opportunity With DA Approved Subdivision
Auction: Thursday, 16th October 2025 
Time: 6:30pm
Address: 1/18 Groves Avenue, Mulgrave NSW 2756
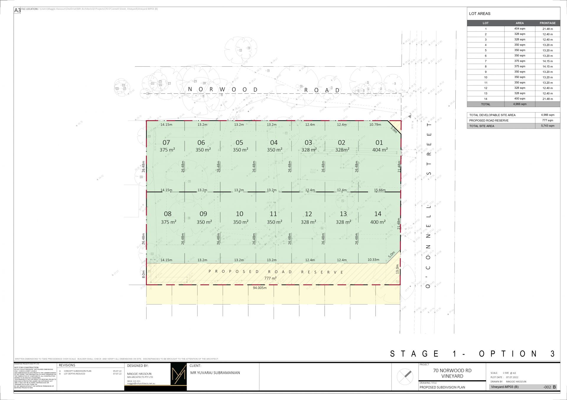
This property offers a generous land area of 5,742 sqm and is situated on the corner of Norwood Road and O'Connell Street. Located in the sought-after location of Vineyard, this property presents an incredible opportunity for those wanting to land bank, invest, or develop with its R2 zoning.
The block is DA approved for 14 lots. Secure now and reap the rewards in the near future as this area continues to develop fast. The affordable investment for the astute buyer includes a bonus 4-bedroom, new 2-bathroom home with new kitchen, laundry and extensive shedding with 5 stables with lighting plus multiple green houses.
Be just a short walk from a direct train line to Sydney and connection to the Sydney Metro, 10 minutes' drive from Rouse Hill Town Centre, 15 minutes from Norwest Business Park, and 45 minutes from Sydney CBD.
With an upgrade to Vineyard Station coming, this location offers a crucial link between the Hills, the Northwest Sydney Metro, the Western Suburbs, and Sydney.
Contact your friendly Cutcliffe agent today for more information about this exciting opportunity.
                        
                    Time: 6:30pm
Address: 1/18 Groves Avenue, Mulgrave NSW 2756
This property offers a generous land area of 5,742 sqm and is situated on the corner of Norwood Road and O'Connell Street. Located in the sought-after location of Vineyard, this property presents an incredible opportunity for those wanting to land bank, invest, or develop with its R2 zoning.
The block is DA approved for 14 lots. Secure now and reap the rewards in the near future as this area continues to develop fast. The affordable investment for the astute buyer includes a bonus 4-bedroom, new 2-bathroom home with new kitchen, laundry and extensive shedding with 5 stables with lighting plus multiple green houses.
Be just a short walk from a direct train line to Sydney and connection to the Sydney Metro, 10 minutes' drive from Rouse Hill Town Centre, 15 minutes from Norwest Business Park, and 45 minutes from Sydney CBD.
With an upgrade to Vineyard Station coming, this location offers a crucial link between the Hills, the Northwest Sydney Metro, the Western Suburbs, and Sydney.
Contact your friendly Cutcliffe agent today for more information about this exciting opportunity.
Property Info
Municipality
                            Vineyard
                        AUCTION
Add to calendar
Thank You
Your enquiry has been sent!
Enquiry is Failed
Please contact your administrator.
 
                             Email Us
                        Email Us