SOLD
Level 2, 271 William Street, Melbourne, VIC 3000
Opportunity to Buy the Whole 2nd Floor. Partitioned Perfectly or Ready for a Fit-out!
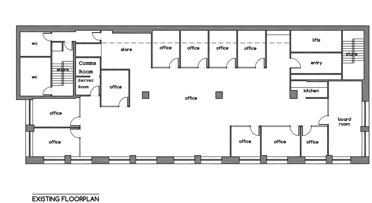
Located on the corner of William Street and Little Lonsdale Street this building is perfectly situated in the heart of Melbourne's Legal Precinct. Take advantage of public transport at your doorstep with easy access for staff and guests. Only moments to the train station and stunning gardens this is an opportunity to get into a prime position and expand. The whole floor is partitioned to suit any number of businesses with surrounding offices for private meetings. Natural light floods throughout the whole property making it easy to feel welcome. Complete with a number of boardrooms please view floor-plans for full layout. Option to include furniture and partitions as part of sale.
Features Include;
- Whole 2nd floor with secure entrance
- Reception desk upon entry
- Large boardrooms that can accomodate any sized business
- 10 private offices
- Multiple boardrooms with large seating capacity
- Enormous open space partitioned for 12 currently with opportunity to cater for a larger number
- Generous kitchen, breakout area
- IT server and utilities area
- Basement parking available
Be quick to enquire, call Gavin on 0408 277 114
Features Include;
- Whole 2nd floor with secure entrance
- Reception desk upon entry
- Large boardrooms that can accomodate any sized business
- 10 private offices
- Multiple boardrooms with large seating capacity
- Enormous open space partitioned for 12 currently with opportunity to cater for a larger number
- Generous kitchen, breakout area
- IT server and utilities area
- Basement parking available
Be quick to enquire, call Gavin on 0408 277 114
PROPERTY FEATURES
- Lift Installed
- Partial Fit Out
Property Info
Municipality
Melbourne
Thank You
Your enquiry has been sent!
Enquiry is Failed
Please contact your administrator.