SOLD
9 Bay Street, Dunalley, TAS 7177
Davis Canvas -Well-known Freehold business, opportunity to increase business value with chandlery
This property can be sold as is or as a blank canvas. Currently operating manufacturing and repairs to canvas and PVC products with corporate clients in place and communities surrounding growing.
The business specialises in repairs on boat covers, sails, ute covers, manufacture bags, seat covers and so much more. Expanding to a marine chandlery could provide additional revenue and clientele.
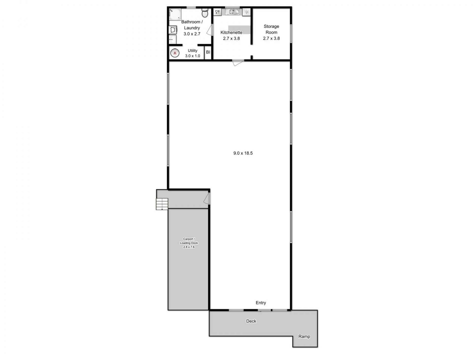
The building is approx. 171 sqm with 3 phase power, kitchenette with dishwasher, bathroom/laundry, utility room, and staff room.
- Opportunity to sew your own future or create a new business venture (STCA)
- Being sold fully equipped - walk-in-walk-out or as a blank canvas
- Great commercial visibility with plenty of street frontage and parking
- Located approx. 20 mins from Sorell, 45 mins from Hobart
Approval for a local marina in Dunalley as in place. It is likely only a matter of time before the innovative marina and surrounding complex comes to fruition. Why not secure this freehold property and business before that happens.
The current owner is retiring but staying in the area and it is possible that they may be happy to work one or two days a week if required.
3 Phase Power, Boat ramps handy, Car Parking - Surface, Close to Schools, Close to Shops
The business specialises in repairs on boat covers, sails, ute covers, manufacture bags, seat covers and so much more. Expanding to a marine chandlery could provide additional revenue and clientele.
The building is approx. 171 sqm with 3 phase power, kitchenette with dishwasher, bathroom/laundry, utility room, and staff room.
- Opportunity to sew your own future or create a new business venture (STCA)
- Being sold fully equipped - walk-in-walk-out or as a blank canvas
- Great commercial visibility with plenty of street frontage and parking
- Located approx. 20 mins from Sorell, 45 mins from Hobart
Approval for a local marina in Dunalley as in place. It is likely only a matter of time before the innovative marina and surrounding complex comes to fruition. Why not secure this freehold property and business before that happens.
The current owner is retiring but staying in the area and it is possible that they may be happy to work one or two days a week if required.
3 Phase Power, Boat ramps handy, Car Parking - Surface, Close to Schools, Close to Shops
Property Info
Municipality
Dunalley
Thank You
Your enquiry has been sent!
Enquiry is Failed
Please contact your administrator.