SOLD
1705 Channel Highway, Margate, TAS 7054
Freehold Medical & Development Opportunity
We have the pleasure of offering for sale two adjoining commercial sites fronting Channel Highway in the heart of Margate.
Combined, the properties offer genuine development upside in a strong growth catchment close to Hobart and sit directly opposite a large retail development currently underway.
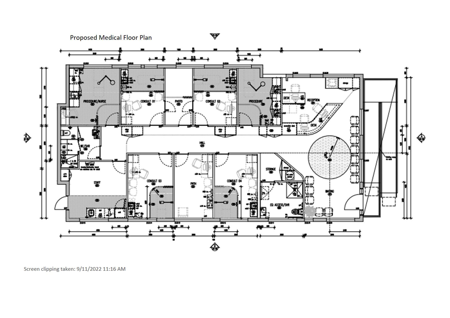
Flexibility exists to proceed with an existing medical concept or undertake a more modest refurbishment of both buildings and lease independently providing a dual income model.
Recent external upgrades include rear carpark & DDA compliant access to proposed medical centre.
Can be sold together or as separate titles, on a vacant possession basis.
1703 Channel Highway
• Land Area 956m² Building 232m²
• DA approved ‘Medical’ use
• Presented as raw shell, fit out ready
1705 Channel Highway
• Land Area 827m² plus residence
• Zoned Local Business
• Complementary/standalone development
Expressions of Interest Close 30th November 2022.
Medical Concept Images Supplied by Preston Lane Architects
Virtual Tour 1703 https://www.youtube.com/watch?v=d9NS7Fx2rNE
Virtual Tour 1705 https://www.youtube.com/watch?v=a_b2fuNWpwU
                        
                    Combined, the properties offer genuine development upside in a strong growth catchment close to Hobart and sit directly opposite a large retail development currently underway.
Flexibility exists to proceed with an existing medical concept or undertake a more modest refurbishment of both buildings and lease independently providing a dual income model.
Recent external upgrades include rear carpark & DDA compliant access to proposed medical centre.
Can be sold together or as separate titles, on a vacant possession basis.
1703 Channel Highway
• Land Area 956m² Building 232m²
• DA approved ‘Medical’ use
• Presented as raw shell, fit out ready
1705 Channel Highway
• Land Area 827m² plus residence
• Zoned Local Business
• Complementary/standalone development
Expressions of Interest Close 30th November 2022.
Medical Concept Images Supplied by Preston Lane Architects
Virtual Tour 1703 https://www.youtube.com/watch?v=d9NS7Fx2rNE
Virtual Tour 1705 https://www.youtube.com/watch?v=a_b2fuNWpwU
Property Info
Municipality
                            Margate
                        Thank You
Your enquiry has been sent!
Enquiry is Failed
Please contact your administrator.
 
                             Email Us
                        Email Us