Price on application
2, 22 Yacaaba Street, Nelson Bay, NSW 2315
Professional Office or retail/medical space
Ideally located in Nelson Bay CBD.
Only one space remaining!
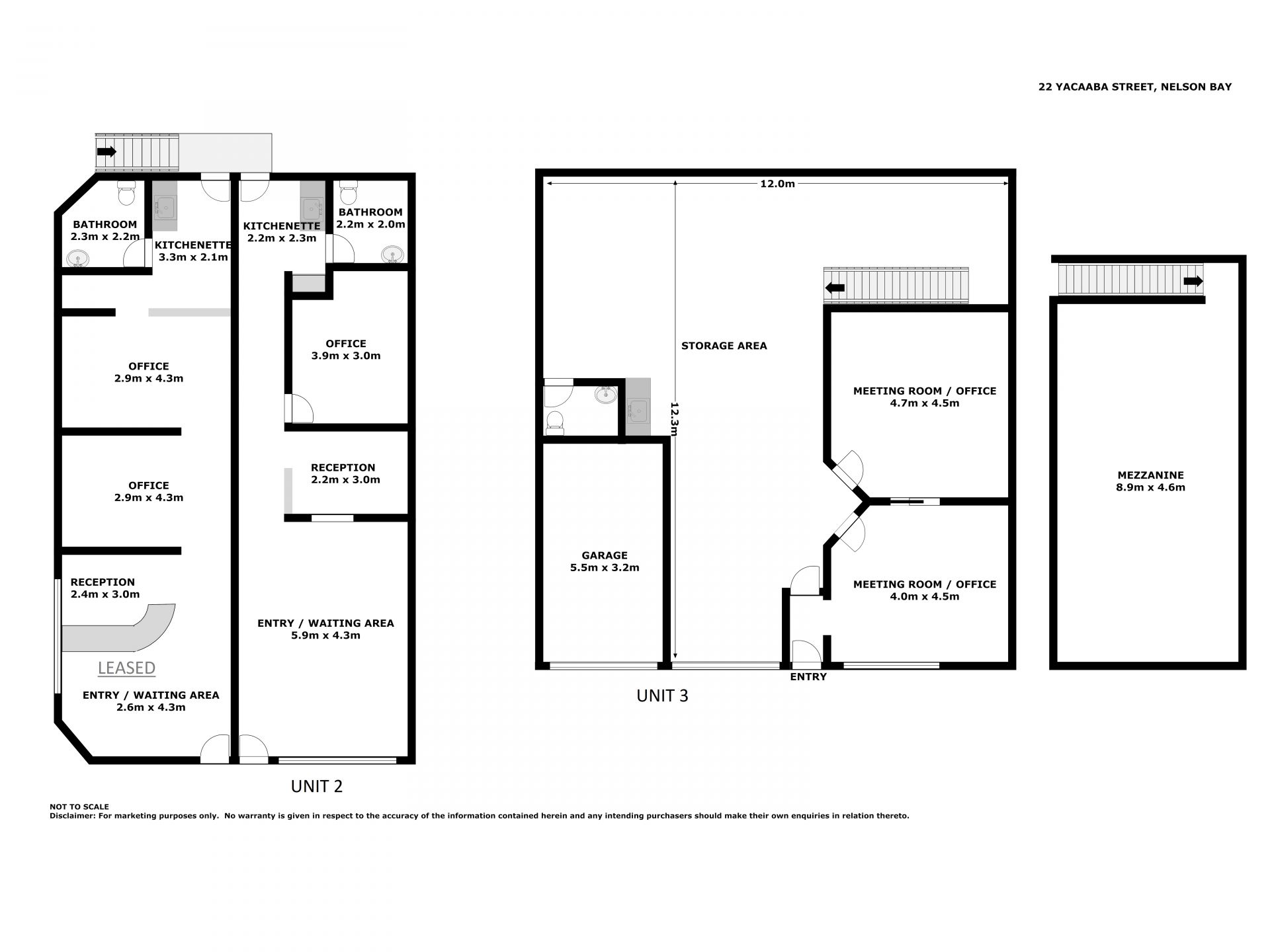
Street Front Unit 2/22 Yacaaba Street, Nelson Bay
• Modern professional street frontage office/retail space 70m2 (approx), with fantastic exposure.
• Glass Frontage
• Kitchen
• Bathroom amenities
• Great signage opportunities
• Stuated in an area popular with medical, government and financiers.
• Yacaaba Street enjoys a high level of pedestrian traffic.
• Ample kerbside parking, plus council car park nearby.
Sought after proven location
Only one space remaining!
Street Front Unit 2/22 Yacaaba Street, Nelson Bay
• Modern professional street frontage office/retail space 70m2 (approx), with fantastic exposure.
• Glass Frontage
• Kitchen
• Bathroom amenities
• Great signage opportunities
• Stuated in an area popular with medical, government and financiers.
• Yacaaba Street enjoys a high level of pedestrian traffic.
• Ample kerbside parking, plus council car park nearby.
Sought after proven location
Property Info
Municipality
Nelson Bay
Thank You
Your enquiry has been sent!
Enquiry is Failed
Please contact your administrator.