SOLD
424-426 San Mateo Avenue, Mildura, VIC 3500
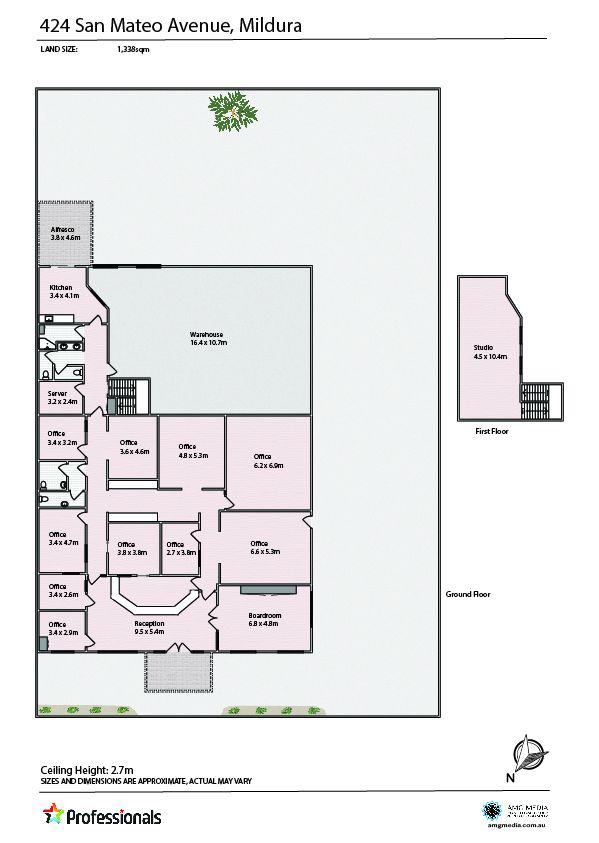
Blue Chip Office / Warehouse Complex
An exciting opportunity to acquire an outstanding Warehouse / Office complex in the sought after San Mateo Avenue / Fifteenth Street precinct.  
Properties of this caliber with excellent street appeal, well presented modern office complex and great location are seldom offered and represent excellent value in todays Commercial market - ideal for Owner Occupiers or Investors. Positioned within a "stones throw" of National retailers such as Dan Murphy's, Coles, Woolworths and Aldi supermarkets, Big W, Mildura Central Plaza, Highgrove Bathrooms and many more.
Key features include:
*Tilt slab construction *Approx. 175m2 warehouse area *10 offices plus boardroom *Large reception area *Computer server room *Kitchen and staff amenities *Alfresco area and upstairs studio *Reverse cycle air conditioning *Evaporative cooling to warehouse *Large Solar system *Fully fenced with secure staff parking at the rear *Roller-doored loading zones *Kerbside customer parking.
Onsite Auction: Friday 20th January 2023 at 11:00am
For further information, please call Tony Roccisano on 0418 502 101 or Tense Venneri on 0409 430 183 today.
                        
                    Properties of this caliber with excellent street appeal, well presented modern office complex and great location are seldom offered and represent excellent value in todays Commercial market - ideal for Owner Occupiers or Investors. Positioned within a "stones throw" of National retailers such as Dan Murphy's, Coles, Woolworths and Aldi supermarkets, Big W, Mildura Central Plaza, Highgrove Bathrooms and many more.
Key features include:
*Tilt slab construction *Approx. 175m2 warehouse area *10 offices plus boardroom *Large reception area *Computer server room *Kitchen and staff amenities *Alfresco area and upstairs studio *Reverse cycle air conditioning *Evaporative cooling to warehouse *Large Solar system *Fully fenced with secure staff parking at the rear *Roller-doored loading zones *Kerbside customer parking.
Onsite Auction: Friday 20th January 2023 at 11:00am
For further information, please call Tony Roccisano on 0418 502 101 or Tense Venneri on 0409 430 183 today.
Property Info
Municipality
                            Mildura
                        AUCTION
Add to calendar
Thank You
Your enquiry has been sent!
Enquiry is Failed
Please contact your administrator.
 
                             Email Us
                        Email Us