SOLD
206 South Road, Mile End, SA 5031
Diverse Corner Opportunity on 779sqm*
Best Offers By Tuesday 30th August @ 3pm
This fantastic character property offers a versatile floor plan with plenty of space and options for a home or office setup.
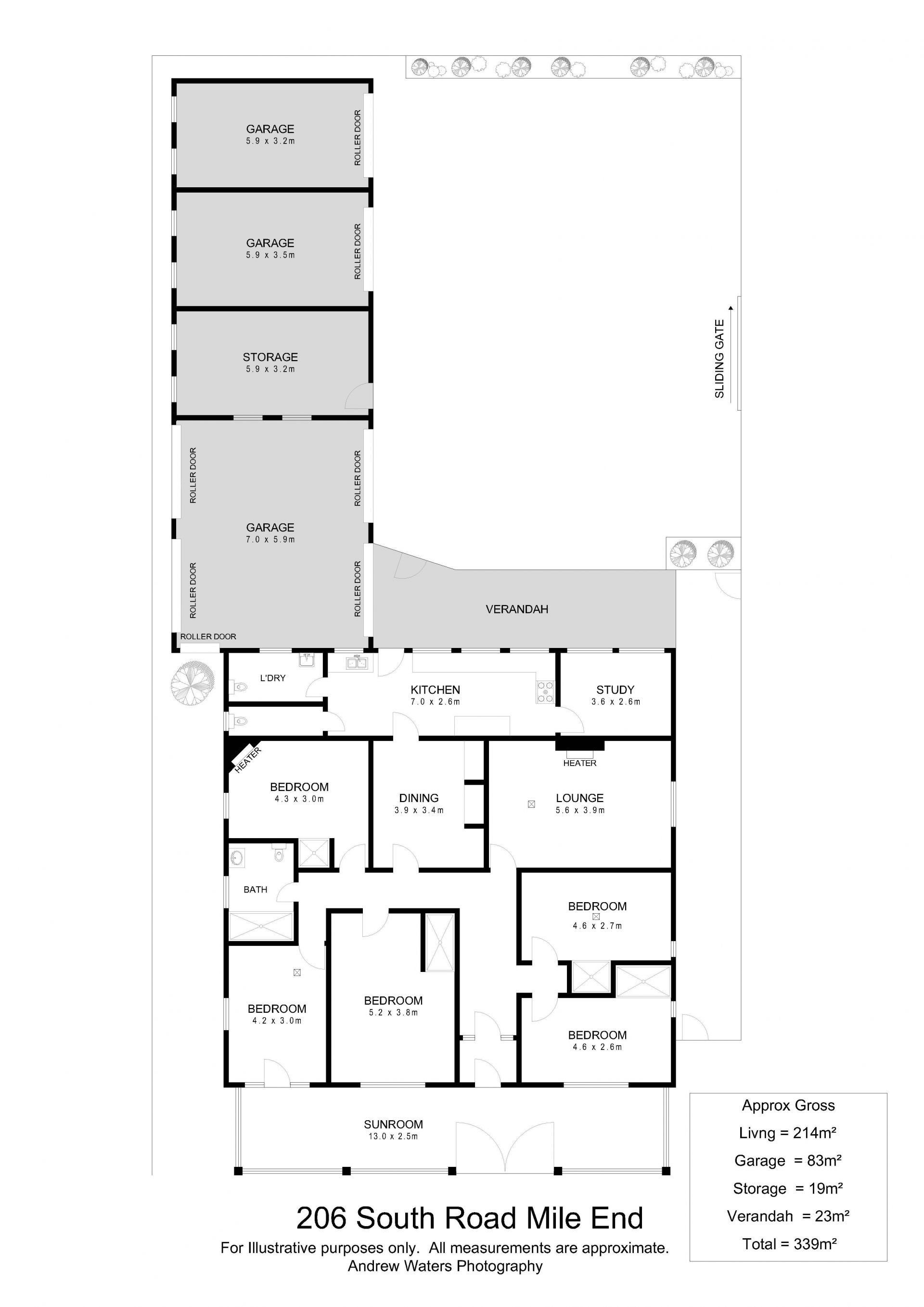
The location is perfect for business owners with plenty of street frontage, ample client parking and a copious amount of internal space to work in. The home comprises of 5 bedrooms, 5 bathrooms, study, formal lounge & dining, separate dining room and a galley style kitchen at the rear.
Situated on a 779sqm (approx) allotment this property provides off street parking including a double garage and 2 single garages along with a storage shed.
Positioned on the city-fringe in a location second to none - just 5 minutes to the city and surrounded by multiple local facilities including the Hilton Hotel, medical/pharmacy, various shopping precincts and easy access to public transport.
Key Features:
- Prized corner allotment
- 5 bedrooms, 5 bathrooms
- Study
- High ornate ceilings with elegant ceiling roses
- Formal lounge & dining
- Galley style kitchen with gas cooktop & ample storage
- 2 separate toilets
- 4 car garages
- Storage shed
- Close to the city, shops & public transport
Specifications
Title: Torrens Title
Year built: c1920
Land size: 779sqm (approx)
Council: City of West Torrens
Zoning: General Neighbourhood
Council rates: TBC
ESL: TBC
All information provided including, but not limited to, the property's land size, floorplan, floor size, building age and general property description has been obtained from sources deemed reliable. However, the agent and the vendor cannot guarantee the information is accurate and the agent, and the vendor, does not accept any liability for any errors or oversights. Interested parties should make their own independent enquiries and obtain their own advice regarding the property. Should this property be scheduled for Auction, the Vendor's Statement will be available for perusal by members of the public 3 business days prior to the Auction at the offices of LJ Hooker Mile End at 206a Henley Beach Road, Torrensville and for 30 minutes prior to the Auction at the place which the Auction will be conducted. RLA 242629
This fantastic character property offers a versatile floor plan with plenty of space and options for a home or office setup.
The location is perfect for business owners with plenty of street frontage, ample client parking and a copious amount of internal space to work in. The home comprises of 5 bedrooms, 5 bathrooms, study, formal lounge & dining, separate dining room and a galley style kitchen at the rear.
Situated on a 779sqm (approx) allotment this property provides off street parking including a double garage and 2 single garages along with a storage shed.
Positioned on the city-fringe in a location second to none - just 5 minutes to the city and surrounded by multiple local facilities including the Hilton Hotel, medical/pharmacy, various shopping precincts and easy access to public transport.
Key Features:
- Prized corner allotment
- 5 bedrooms, 5 bathrooms
- Study
- High ornate ceilings with elegant ceiling roses
- Formal lounge & dining
- Galley style kitchen with gas cooktop & ample storage
- 2 separate toilets
- 4 car garages
- Storage shed
- Close to the city, shops & public transport
Specifications
Title: Torrens Title
Year built: c1920
Land size: 779sqm (approx)
Council: City of West Torrens
Zoning: General Neighbourhood
Council rates: TBC
ESL: TBC
All information provided including, but not limited to, the property's land size, floorplan, floor size, building age and general property description has been obtained from sources deemed reliable. However, the agent and the vendor cannot guarantee the information is accurate and the agent, and the vendor, does not accept any liability for any errors or oversights. Interested parties should make their own independent enquiries and obtain their own advice regarding the property. Should this property be scheduled for Auction, the Vendor's Statement will be available for perusal by members of the public 3 business days prior to the Auction at the offices of LJ Hooker Mile End at 206a Henley Beach Road, Torrensville and for 30 minutes prior to the Auction at the place which the Auction will be conducted. RLA 242629
PROPERTY FEATURES
- Close to Schools
- Close to Shops
- Close to Transport
Property Info
Municipality
Mile End
Thank You
Your enquiry has been sent!
Enquiry is Failed
Please contact your administrator.