$1,400,000
204-206 Moorabool Street, Geelong, VIC 3220
A Rare Offering of Two Shops in High Exposure CBD Location
Set on prized Moorabool Street with two street frontages and on the doorstep of St John of God Hospital, this rare offering of two shops on the one title will suit the astute purchaser looking for blue-chip commercial property with attractive returns.
This rare offering on Geelong's most sought-after retail strip offers two adjoining shops, one with a current lease in place with the highly successful long term tenant Sam's Café and the adjoining shop currently vacant to suit owner occupier or relet for strong returns.
Located in the heart of the Geelong CBD and surrounded by landmark properties including the medical precinct, the many apartment towers, the performing arts building, the library and only a short stroll to the waterfront this property is set for high capital growth.
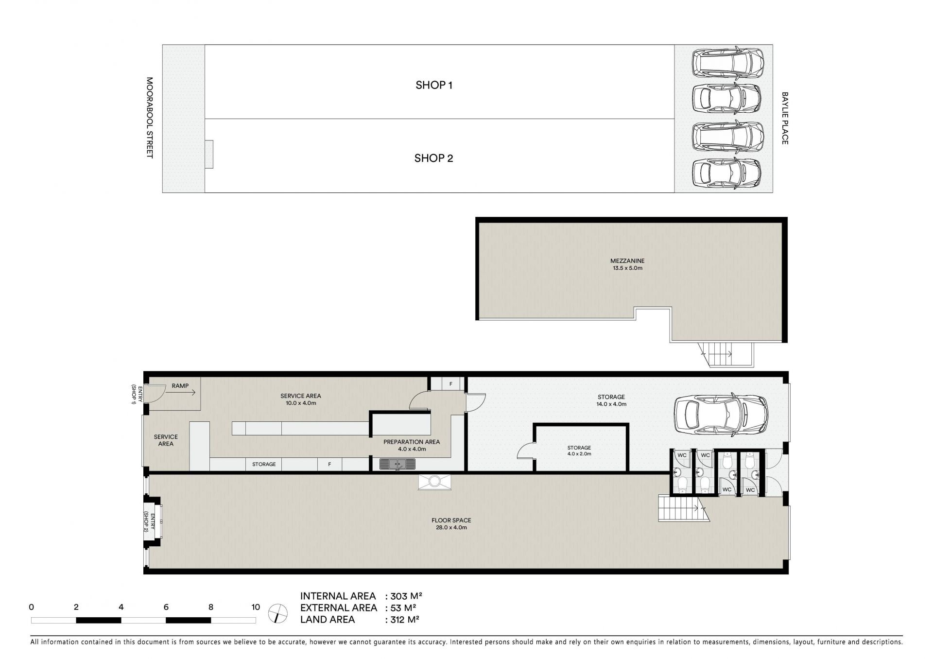
- Land size 312sqm, two street access
- 206 Moorabool St (Sam's Café) floor area 112sqm (approx). Current lease $30,000 per annum plus GST, plus outgoings, annual 3 % increase, term 5yrs x 5yrs
- 204 Moorabool St floor space 112sqm plus mezzanine of 65sqm currently vacant, projected income $40,000 per annum
- Located in the heart of the Geelong CBD
- Geelong's premier retail strip surrounded by long-standing businesses
- Rear access via Baylie Place offering car parking
- High exposure site
- Activity Centre Zone 1
- Suited to investors looking for high capital growth
- Suited to owner-occupier
- Potential for future development
- Freehold only
This rare offering on Geelong's most sought-after retail strip offers two adjoining shops, one with a current lease in place with the highly successful long term tenant Sam's Café and the adjoining shop currently vacant to suit owner occupier or relet for strong returns.
Located in the heart of the Geelong CBD and surrounded by landmark properties including the medical precinct, the many apartment towers, the performing arts building, the library and only a short stroll to the waterfront this property is set for high capital growth.
- Land size 312sqm, two street access
- 206 Moorabool St (Sam's Café) floor area 112sqm (approx). Current lease $30,000 per annum plus GST, plus outgoings, annual 3 % increase, term 5yrs x 5yrs
- 204 Moorabool St floor space 112sqm plus mezzanine of 65sqm currently vacant, projected income $40,000 per annum
- Located in the heart of the Geelong CBD
- Geelong's premier retail strip surrounded by long-standing businesses
- Rear access via Baylie Place offering car parking
- High exposure site
- Activity Centre Zone 1
- Suited to investors looking for high capital growth
- Suited to owner-occupier
- Potential for future development
- Freehold only
Property Info
Municipality
Geelong
AUCTION
Add to calendar
Thank You
Your enquiry has been sent!
Enquiry is Failed
Please contact your administrator.