SOLD
550 Goodwood Road, Daw Park, SA 5041
Solid Investment in Outstanding High Exposure Location - SOLD
Refined Real Estate is delighted to present 550 Goodwood Road, Daw Park For Sale.
Located on the highly exposed Goodwood Road, surrounded by an array of commercial offices housing both professional services and retail, this property receives ample foot traffic, while approximately 25,000 cars passing daily, this fantastic asset offers investors a stable income stream and plenty of potential for future development..
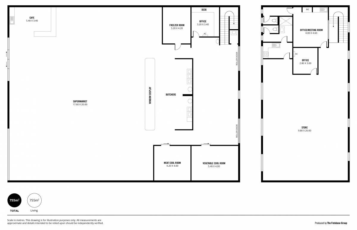
Previously an IGA Foodland Supermarket with a large open retail space and upstairs area, this multipurpose property has just been fully renovated in 2018 from top to bottom as a supermarket with new fridge, cool rooms, freezer room.
With rear lane access for deliveries, plus plentiful on-street parking out the front and side street, additional office/living space including a kitchen, 2 office rooms, a bathroom and 2 toilets on the first floor, this property is both flexible and adaptable.
Currently tenanted with a secured lease until Oct 2023 (with one option of 3 years to extend), this property presents an exceptional opportunity for investors to grow the value of their portfolio.
Property Details:
- Previously an IGA Foodland Supermarket
- Popular location with street frontage + ample foot & vehicle traffic
- Zoning: Neighbourhood Centre, and Land use: Supermarkets
- Land Size- 585 m2 approx. (under 3 titles) with 21.34 m frontage
-Prominent two storey freehold with 755m2 internal floor space, with 500.58 m2 (Ground Floor) and 199.82 m2 (Upper Level)
- Secured rental income of $115,000 (incl. GST) p.a. + outgoings
- Longstanding tenant with ongoing lease + 1 option of 3 years to extend
- Ample office/living space on upper level with bathroom, kitchen and toilets
- 2 Brand new Cool rooms and 1 Freezer room installed in 2018
- 5 Brand new commercial grade Cassette Split System Air Conditioners with 5 years Parts and Labour Warranty installed in 2018
- Open Multideck Self Contained Fridge and Commercial Whole in One Fridge are also installed
- Shop alarm System with 8 Smoke Detectors and Security Camera System are installed
- All Equipment are included (Shop Equipment List will be provided)
For further information on this prime opportunity, or to view the property, please call Mu Xiao on 0433 851 298 today.
Located on the highly exposed Goodwood Road, surrounded by an array of commercial offices housing both professional services and retail, this property receives ample foot traffic, while approximately 25,000 cars passing daily, this fantastic asset offers investors a stable income stream and plenty of potential for future development..
Previously an IGA Foodland Supermarket with a large open retail space and upstairs area, this multipurpose property has just been fully renovated in 2018 from top to bottom as a supermarket with new fridge, cool rooms, freezer room.
With rear lane access for deliveries, plus plentiful on-street parking out the front and side street, additional office/living space including a kitchen, 2 office rooms, a bathroom and 2 toilets on the first floor, this property is both flexible and adaptable.
Currently tenanted with a secured lease until Oct 2023 (with one option of 3 years to extend), this property presents an exceptional opportunity for investors to grow the value of their portfolio.
Property Details:
- Previously an IGA Foodland Supermarket
- Popular location with street frontage + ample foot & vehicle traffic
- Zoning: Neighbourhood Centre, and Land use: Supermarkets
- Land Size- 585 m2 approx. (under 3 titles) with 21.34 m frontage
-Prominent two storey freehold with 755m2 internal floor space, with 500.58 m2 (Ground Floor) and 199.82 m2 (Upper Level)
- Secured rental income of $115,000 (incl. GST) p.a. + outgoings
- Longstanding tenant with ongoing lease + 1 option of 3 years to extend
- Ample office/living space on upper level with bathroom, kitchen and toilets
- 2 Brand new Cool rooms and 1 Freezer room installed in 2018
- 5 Brand new commercial grade Cassette Split System Air Conditioners with 5 years Parts and Labour Warranty installed in 2018
- Open Multideck Self Contained Fridge and Commercial Whole in One Fridge are also installed
- Shop alarm System with 8 Smoke Detectors and Security Camera System are installed
- All Equipment are included (Shop Equipment List will be provided)
For further information on this prime opportunity, or to view the property, please call Mu Xiao on 0433 851 298 today.
Property Info
Municipality
Daw Park
Thank You
Your enquiry has been sent!
Enquiry is Failed
Please contact your administrator.