SOLD
Barwell Avenue & Bice Street, Barmera, SA 5345
Commercial Investment - 6 Premises - Prime central location
23, 25 & 27 Barwell Avenue, 1, 1A & 3 Bice Street Barmera
Ideally located in this busy corner retail location in the centre of this delightful Riverland town popular with the locals and the abundance of tourists that Barmera attracts.
This unique offering of 6 business premises provides a superb investment opportunity for the astute investor, or perhaps use some of the area for your own business and enjoy the returns achieved from the balance.
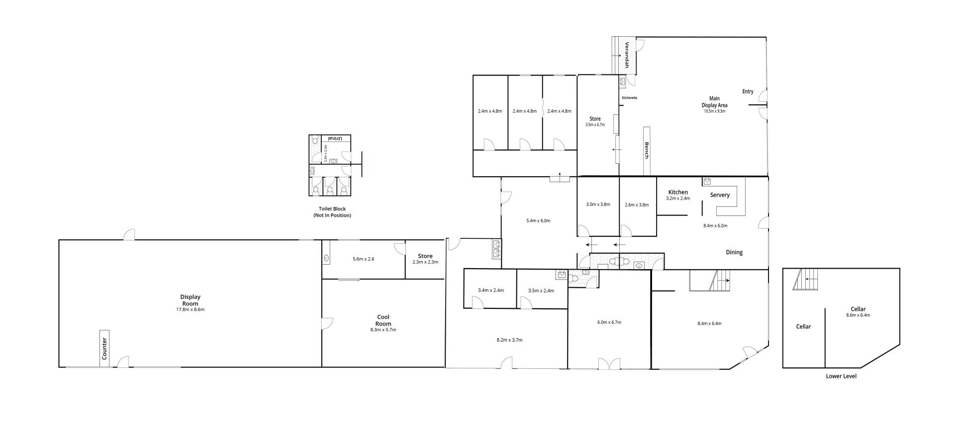
3 Bice Street Barmera - Offers a long term tenant with current 5 x 5 x 5 year lease, providing approx. $16,772 return per annum.
25 Barwell Avenue - on the corner with frontage to Barwell Avenue and Bice Street with spacious retail area, toilet and large cellar for storage, current 2 x 2 x 2 year lease providing approx. $6,070 return per annum.
27 Barwell Avenue - dining / retail front area with servery and kitchen facilities leading via passages to a further 6 rooms & toilet, current 2 x 2 x 2 year lease providing approx. $6,070 return per annum.
23 Barwell Avenue - double fronted premises providing excellent window display to main street, could be converted into 2 separate premises if required - currently advertised for rent for $7,200 per annum
1A Bice Street - large reception area, two offices, kitchen area and access to toilet block, freshly carpeted floors, currently advertised for rent for $6,960 per annum
1 Bice Street - Open office / retail area and toilet - currently advertised for rent for $5,040 per annum
All this on one freehold title of approx. 1,137m2 in this perfect location
Ideally located in this busy corner retail location in the centre of this delightful Riverland town popular with the locals and the abundance of tourists that Barmera attracts.
This unique offering of 6 business premises provides a superb investment opportunity for the astute investor, or perhaps use some of the area for your own business and enjoy the returns achieved from the balance.
3 Bice Street Barmera - Offers a long term tenant with current 5 x 5 x 5 year lease, providing approx. $16,772 return per annum.
25 Barwell Avenue - on the corner with frontage to Barwell Avenue and Bice Street with spacious retail area, toilet and large cellar for storage, current 2 x 2 x 2 year lease providing approx. $6,070 return per annum.
27 Barwell Avenue - dining / retail front area with servery and kitchen facilities leading via passages to a further 6 rooms & toilet, current 2 x 2 x 2 year lease providing approx. $6,070 return per annum.
23 Barwell Avenue - double fronted premises providing excellent window display to main street, could be converted into 2 separate premises if required - currently advertised for rent for $7,200 per annum
1A Bice Street - large reception area, two offices, kitchen area and access to toilet block, freshly carpeted floors, currently advertised for rent for $6,960 per annum
1 Bice Street - Open office / retail area and toilet - currently advertised for rent for $5,040 per annum
All this on one freehold title of approx. 1,137m2 in this perfect location
Property Info
Municipality
Barmera
Thank You
Your enquiry has been sent!
Enquiry is Failed
Please contact your administrator.