3/3 Tuck Street, Moorabbin, VIC 3189
Last Remaining office spaces 150sqm - 600sqm in Architectural Icon
Phone enquiries - please quote property ID 26697.
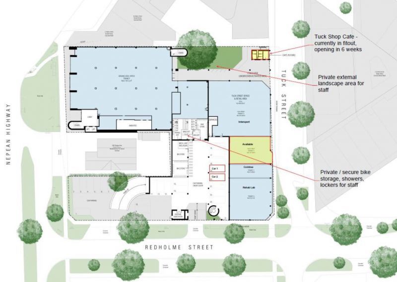
Join Rehab Lab, Coin Tree, Intersport and award winning café operator Tuckshop by Comma in this new architectural icon in Moorabbin Town Centre. Since the completion of this significant refurbishment.
These flexible tenancy sizes provide the flexibility for businesses to relocate their office or allied health businesses as the last piece of this exciting refurbishment.
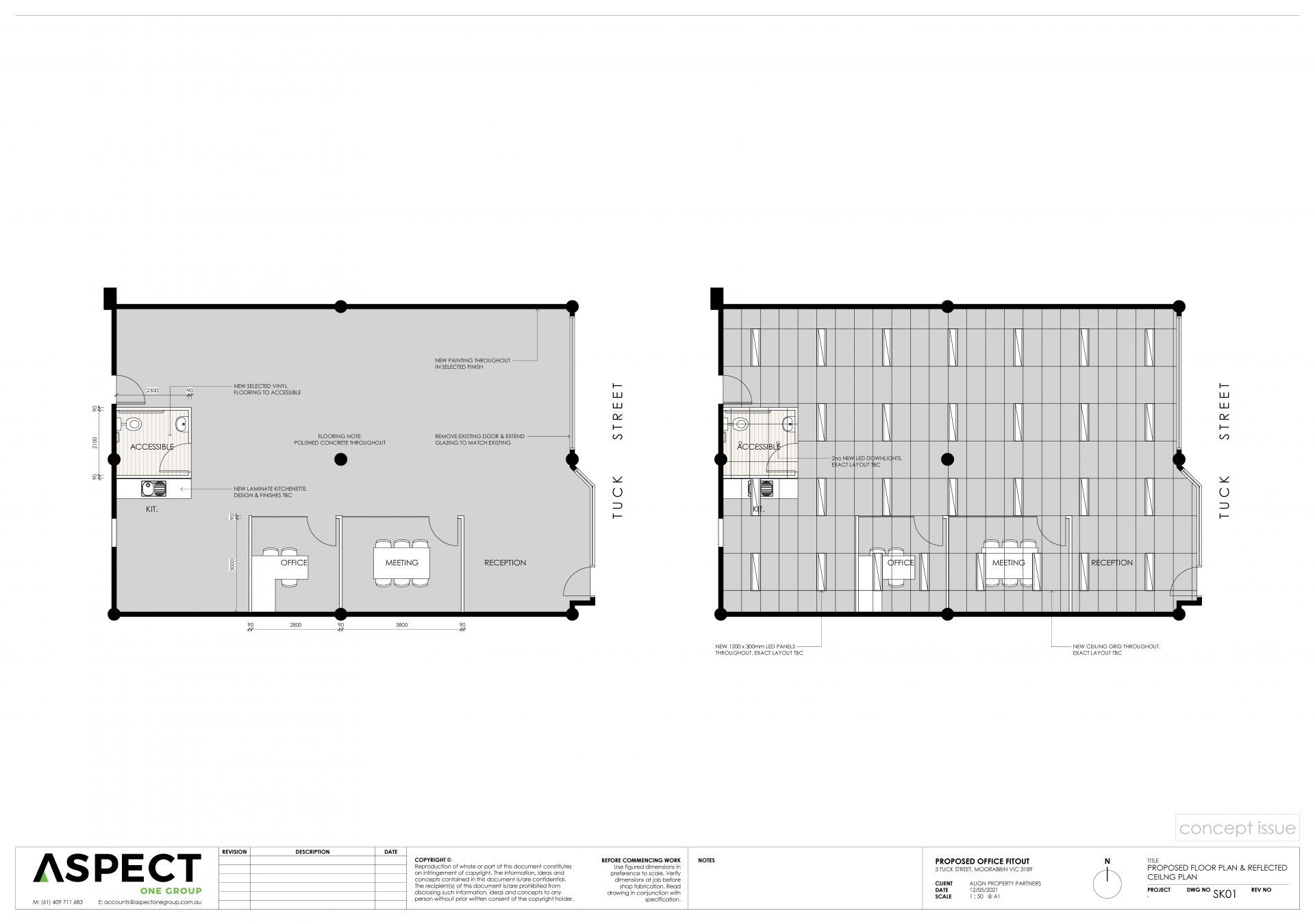
These final spaces present as a blank canvas with high ceilings to create your new environment from. There are high quality new end of trip cycle, locker and shower facilities for the use of tenants, outdoor landscaped areas for informal meetings and carparking at your door.
We, Align Property Partners, as Landlord have elected to list this final space ourselves because quite simply, we care. To that end we are more than happy to undertake a fitout to your specification or just provide you the funds to do it with your own builder. The point here is we are happy to take care of any or all parts of the fitout process, our main objective is to ensure that our clients/tenants are thrilled with their new home such that the environment we jointly create supports the culture/image of your businesses.
Come down and see what we have done for others and lets chat about how we might be able to do the same for you.
DISCLAIMER No Agent Business (www.noagentbusiness.com.au) is an Australian For Sale By Owner website operating since 1999. We proudly assist commercial property owners who are looking to sell or lease their own commercial property without paying any real estate commission. While every care has been taken to verify the accuracy of the details in this advertisement, the correctness cannot be guaranteed.
Join Rehab Lab, Coin Tree, Intersport and award winning café operator Tuckshop by Comma in this new architectural icon in Moorabbin Town Centre. Since the completion of this significant refurbishment.
These flexible tenancy sizes provide the flexibility for businesses to relocate their office or allied health businesses as the last piece of this exciting refurbishment.
These final spaces present as a blank canvas with high ceilings to create your new environment from. There are high quality new end of trip cycle, locker and shower facilities for the use of tenants, outdoor landscaped areas for informal meetings and carparking at your door.
We, Align Property Partners, as Landlord have elected to list this final space ourselves because quite simply, we care. To that end we are more than happy to undertake a fitout to your specification or just provide you the funds to do it with your own builder. The point here is we are happy to take care of any or all parts of the fitout process, our main objective is to ensure that our clients/tenants are thrilled with their new home such that the environment we jointly create supports the culture/image of your businesses.
Come down and see what we have done for others and lets chat about how we might be able to do the same for you.
DISCLAIMER No Agent Business (www.noagentbusiness.com.au) is an Australian For Sale By Owner website operating since 1999. We proudly assist commercial property owners who are looking to sell or lease their own commercial property without paying any real estate commission. While every care has been taken to verify the accuracy of the details in this advertisement, the correctness cannot be guaranteed.
Property Info
Municipality
Moorabbin
NEARBY PROPERTIES
Thank You
Your enquiry has been sent!
Enquiry is Failed
Please contact your administrator.