PRICE NEGOTIABLE
243 Little Bourke Street, Melbourne, VIC 3000
Leisure/Entertainment Amusements
Le Town Board Games & Mahjong Prime Melbourne CBD Location in China Town
Phone enquiries - please quote property ID 26242.
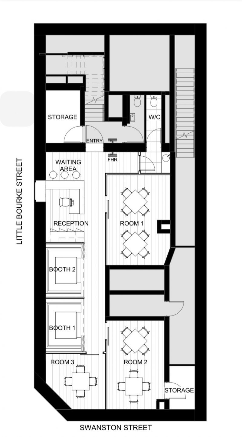
Situated in the heart of Melbourne CBD, this exciting board game business has so much further growth opportunities. Its model is based on the hire of board game space/rooms for individuals and groups, along with the teaching of games.
There is a wide selection of games and role-playing detective games (Murder mystery games) including Mahjong, Werewolf, Catan, Puerto Rico, Penguin Knocking, Desperate Party, chess/international chess, Jack The Ripper, and many more. More than 100 games for customers covering various levels including light strategy, heavy strategy, speed matching, bluff, simulation, race, co-operative, hand management, tile placement, card games, a dice game, square grid, and much more.
This is a unique business just waiting for the new owner to take over and ‘thrive’.
Premises are leased at extremely reasonable rent.
* Excellent location on Little Bourke Street, China Town
* Very reasonable rent
* High Exposure
* High Popularity
* Stable returning customers
* Good turnover (over $180,000 per annum) – pre and after COVID
* Owners are happy to assist and train in the transition period
Want to be your own boss? Then this is the ideal business. If you have an interest in board games, Majong, or any type of game, then this platform is the way for you to go!
This is the new rage for young and old. A place to go, socialise and play games!
Enquire today for further information.
DISCLAIMER No Agent Business (www.noagentbusiness.com.au) is an Australian For Sale By Owner website operating since 1999. We proudly assist business owners who are looking to sell their own business without paying any broker commission. While every care has been taken to verify the accuracy of the details in this advertisement, the correctness cannot be guaranteed.
Situated in the heart of Melbourne CBD, this exciting board game business has so much further growth opportunities. Its model is based on the hire of board game space/rooms for individuals and groups, along with the teaching of games.
There is a wide selection of games and role-playing detective games (Murder mystery games) including Mahjong, Werewolf, Catan, Puerto Rico, Penguin Knocking, Desperate Party, chess/international chess, Jack The Ripper, and many more. More than 100 games for customers covering various levels including light strategy, heavy strategy, speed matching, bluff, simulation, race, co-operative, hand management, tile placement, card games, a dice game, square grid, and much more.
This is a unique business just waiting for the new owner to take over and ‘thrive’.
Premises are leased at extremely reasonable rent.
* Excellent location on Little Bourke Street, China Town
* Very reasonable rent
* High Exposure
* High Popularity
* Stable returning customers
* Good turnover (over $180,000 per annum) – pre and after COVID
* Owners are happy to assist and train in the transition period
Want to be your own boss? Then this is the ideal business. If you have an interest in board games, Majong, or any type of game, then this platform is the way for you to go!
This is the new rage for young and old. A place to go, socialise and play games!
Enquire today for further information.
DISCLAIMER No Agent Business (www.noagentbusiness.com.au) is an Australian For Sale By Owner website operating since 1999. We proudly assist business owners who are looking to sell their own business without paying any broker commission. While every care has been taken to verify the accuracy of the details in this advertisement, the correctness cannot be guaranteed.
Property Info
Municipality
Melbourne
NEARBY PROPERTIES
Thank You
Your enquiry has been sent!
Enquiry is Failed
Please contact your administrator.