$400,000
56 Thistle Street West, South Launceston, TAS 7249
Unique!
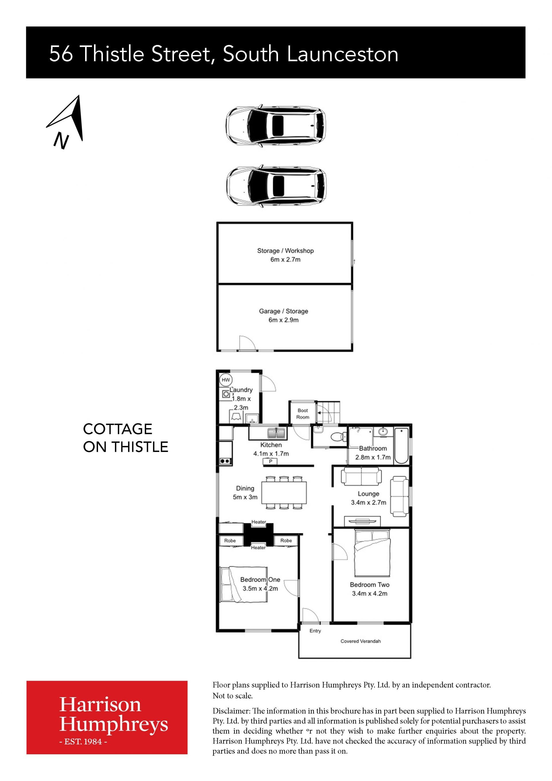
Here we have a unique opportunity for ones investment portfolio or a great way to kick-off your investment journey. Situated in the ever popular suburb of South Launceston, this property boasts 3 dwellings. First being a beautiful 1920’s character cottage at the front. Featuring 2 large bedrooms with polished timber floorboards throughout. The updated bathroom is highlighted by the stunning freestanding claw foot bathtub. Out the back are 2 uniquely converted Red Caboose train carriages with 1 being a carpeted bedroom and the other a kitchen and living area with polished timber floorboards as well as a bathroom. Finished really nicely. The carriages have been in place since 2009. The third is a one bedroom cottage with beautiful exposed timber cathedral ceiling. Polished timber floorboards throughout with modern bathroom and separate toilet, as well as a large open kitchen living area. All are perfect for short term accommodation. An ideal location, being only a short drive to the Launceston General hospital, Cafes of Charles Street and Launceston CBD, also with the Door of Hope complex down the street and the Cataract Gorge, Supermarkets and food outlets all within 2 kilometres. Very unique, rare opportunity, potentially 3 incomes. Longer term or short terms rentals - options abound. Currently the cottage is rented for $250 per week and the rear apartment for $220 per week. The owners will consider an offer to purchase whereby the carriages are removed.This is a property you will want to see!
Property Info
Municipality
South Launceston
- 730 Sqm
Harrison Agents Launceston Launceston
48 Brisbane St
Launceston, TAS 7250
Tel: 0363326400
NEARBY PROPERTIES

Harrison Agents
Thank You
Your enquiry has been sent!
Enquiry is Failed
Please contact your administrator.