$660,000
85A George Street, Launceston, TAS 7250
Comprehensive Launceston CBD Property in the Heart of George Street
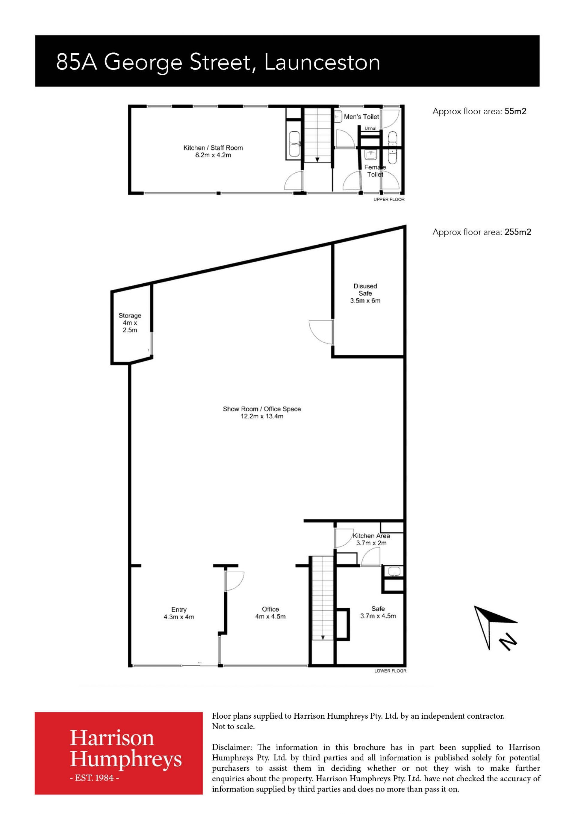
Great frontage onto George Street in a vibrant retail, service and restaurant strip within Launceston's CBD and only a stone through from the busy Brisbane and George Street intersection this property offers fantastic scope. Previously used as a banking chamber and originally the Reserve Bank of Australia building the property has most recently been used as retail premises. Primarily featuring an open plan layout on the ground floor with storage options in addition along with a kitchenette. The first floor comprises the amenities with a breakout kitchen area and male and female toilet facilities. The signage options are plenty, floor to ceiling plate glass windows offer great frontage to the passing foot and vehicle traffic while the easy access via automated doors along with the air-conditioning further add to the appeal this central high profile property offers. Suiting a range of uses the property is ideal for owner occupiers while opportunity exists for the investor to purchase and tenant. In immediate proximity to multistory commercial property consideration to further add value by developing above subject to any approvals required is also an options worth further investigation. Call now for additional information or to arrange an inspection.
The information on this website has in part been supplied to Harrison Humphreys Pty. Ltd .by third parties and all information is published solely for potential purchasers to assist them in deciding whether or not they wish to make further enquiries about the properties.
The information on this website has in part been supplied to Harrison Humphreys Pty. Ltd. by third parties and Harrison Humphreys Pty. Ltd. has not checked the accuracy of the information and does no more than pass it on.
The information on this website has in part been supplied to Harrison Humphreys Pty. Ltd .by third parties and all information is published solely for potential purchasers to assist them in deciding whether or not they wish to make further enquiries about the properties.
The information on this website has in part been supplied to Harrison Humphreys Pty. Ltd. by third parties and Harrison Humphreys Pty. Ltd. has not checked the accuracy of the information and does no more than pass it on.
Property Info
Municipality
Launceston
NEARBY PROPERTIES
Thank You
Your enquiry has been sent!
Enquiry is Failed
Please contact your administrator.